Vente Maison 84330, CAROMB france 348 000 €
Descriptif du bien
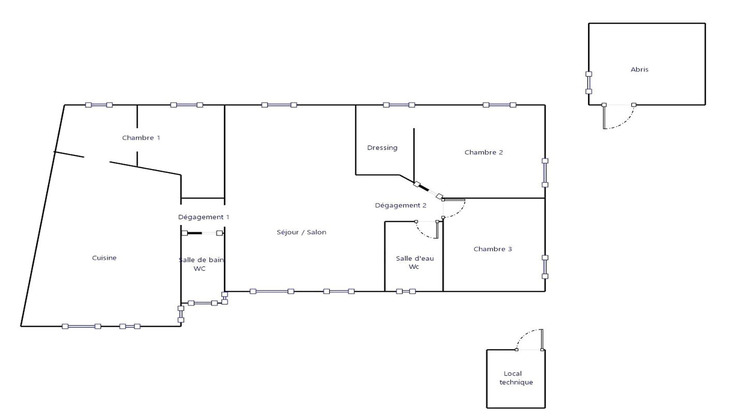
A Caromb, dans un quartier calme, résidentiel et recherché, cette maison de plain-pied d'environ 145 m² offre des volumes confortables et une organisation fonctionnelle. Elle se compose d'un grand séjour lumineux, d'une cuisine indépendante, une salle de bains, d'une buanderie, (ancienne salle d'eau) ainsi que de trois chambres. L'ensemble est implanté sur une parcelle close et sans vis à vis de plus de 620 m², offrant un bel extérieur à aménager selon vos envies. La piscine est chauffée pour profiter de nos beaux débuts de saison. Une maison agréable à vivre, aux proportions généreuses, située dans un environnement paisible, idéale pour une famille ou pour ceux qui recherchent le confort du plain-pied. Bien rare sur le secteur, à mettre aux goûts du jour. Pour visiter ou en savoir plus... il suffit de nous appeler au 04.90.62.48.53. A bientôt. Les informations sur les risques auxquels ce bien est exposé sont disponibles sur le site Géorisques : www.georisques.gouv.fr.
- Type de bien : Maison
- DPE : D - 151 à 230 kWh/².an
- GES : B - 6 à 10 kg eq CO2/².an
- Surface : 145 m²
- Localisation : France - provence-alpes-cote-d-azur - Vaucluse
- Ville : CAROMB
- Code postal : 84330
- Annonce créée le 10/03/2026









