Vente Maison 11000, Carcassonne france 89 900 €
Descriptif du bien
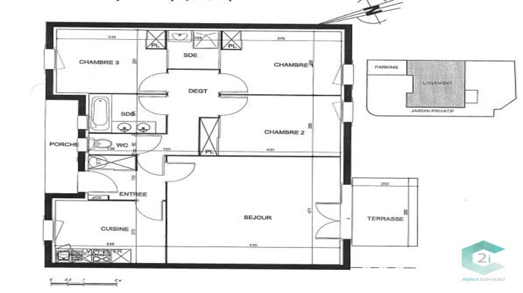
Carcassonne (11000) Secteur MontredonVilla T4 82 m² Plain-pied Vendue louée Rentabilité brute : 8,5 %
Située dans le secteur recherché de Montredon à Carcassonne, cette villa de plain-pied de 82 m² offre un cadre de vie agréable avec son jardin privatif et ses emplacements de stationnement. Bien agencée, elle se compose de :Une entrée avec placard,
Une cuisine aménagée indépendante,
Un séjour lumineux de 25 m² ouvrant sur une terrasse exposée sud-ouest et un jardin de plus de 180 m²,
Trois chambres avec placards,
Une salle de bains avec double vasque,
Une salle d'eau attenante à deux des chambres,
Un WC séparé.
Deux places de parking aérien, situées devant et en face de la villa, complètent ce bien.
Vendu loué :Le locataire est en place depuis mars 2019, sans aucun incident de paiement.
Éléments financiers :
Loyer : 644,57 hors charges + 39 de provisions sur charges, soit 683,57 CC/mois
Charges de copropriété : environ 140 /mois
Taxe foncière : 1 686 /an (dont 230 de TOM)
Honoraires à la charge du vendeur
Travaux récents :Chauffe-eau remplacé début 2025
Peintures partiellement refaites en 2019
Façades nettoyées récemment
Un bien idéal pour un investisseur à la recherche d'un placement locatif sûr et rentable.
Besoin de plus d'informations ? Contactez-nous !
Honoraires à la charge du vendeur. Dans une copropriété de 249 lots. Aucune procédure n'est en cours. Classe énergie C, Classe climat A Montant estimé des dépenses annuelles d'énergie pour un usage standard : entre 990.00 et 1390.00 sur les années 2021, 2022 et 2023 (abonnements compris). Les informations sur les risques auxquels ce bien est exposé sont disponibles sur le site Géorisques : georisques.gouv.fr.


