Vente Maison 33560, Carbon-Blanc france 315 000 €
Descriptif du bien
CARBON BLANC, l'agence CITY BORDEAUX IMMOBILIER vous présente cette jolie maison entièrement de plain pied NON MITOYENNE à 2 pas du TRAM A.
Sur une parcelle de 608 m2 totalement clôturée que vous pourrez agrémenter si vous le souhaitez d'une piscine.
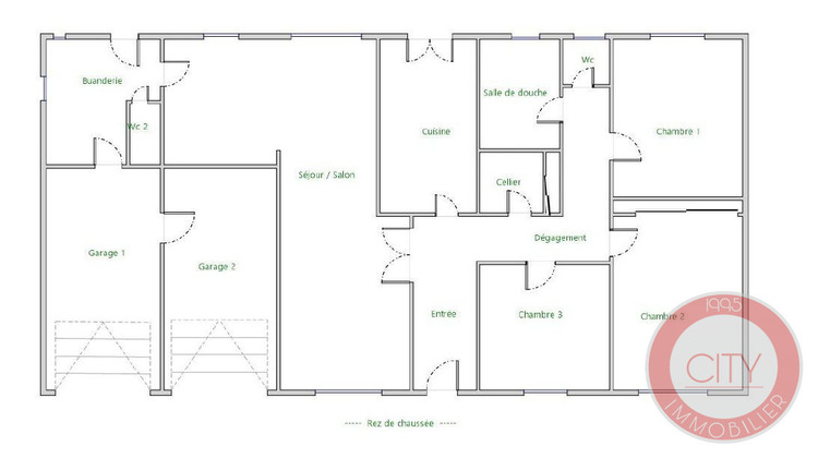
Dès l'entrée vous apprécierez sa grande entrée, son vaste séjour double avec sa cheminée,
la cuisine quant à elle est assez spacieuse pour y prendre ses diners. (cloison entre séjour et cuisine un open space est tout à fait possible !)
Côté nuit vous trouverez 3 chambres, Salle d'eau, 2 toilettes.
Grande buanderie ainsi qu'un garage et un grand atelier.
Huisseries Alu et volets électriques.
Sa luminosité, ses grandes baies vitrées ne pourront que vous séduire.
Quelques travaux pourraient être envisagés afin que la maison retrouve la modernité d'aujourd'hui.
Ecoles, Lycées, Transports TRAM et BUS, Commerces à 2 PAS.
Coup de coeur assuré !!!!!!!!!!!!!!!!!!
Honoraires à la charge du vendeur. Classe énergie D, Classe climat D Montant estimé des dépenses annuelles d'énergie pour un usage standard : entre 1830.00 et 2530.00 sur les années 2021, 2022 et 2023 (abonnements compris). Les informations sur les risques auxquels ce bien est exposé sont disponibles sur le site Géorisques : georisques.gouv.fr.
Votre conseiller City Bordeaux : Pascale BOUAKNIN
Agent commercial (Entreprise individuelle)
RSAC 509 549 226
RCP 127124683
- Type de bien : Maison
- DPE : D - 151 à 230 kWh/².an
- GES : D - 21 à 35 kg eq CO2/².an
- Surface : 108 m²
- Localisation : France - Nouvelle-Aquitaine - Gironde
- Ville : Carbon-Blanc
- Code postal : 33560
- Annonce créée le 13/02/2026





