Vente Maison 49440, Candé france 249 900 €
Descriptif du bien
Pavillon neuf en cours de construction, livraison prévue octobre 2025.
Situé sur la commune de Candé, à deux minutes à pied de toutes les commodités.
Maison à haute performance énergétique, plancher chauffant et rafraîchissant, aérothermie.
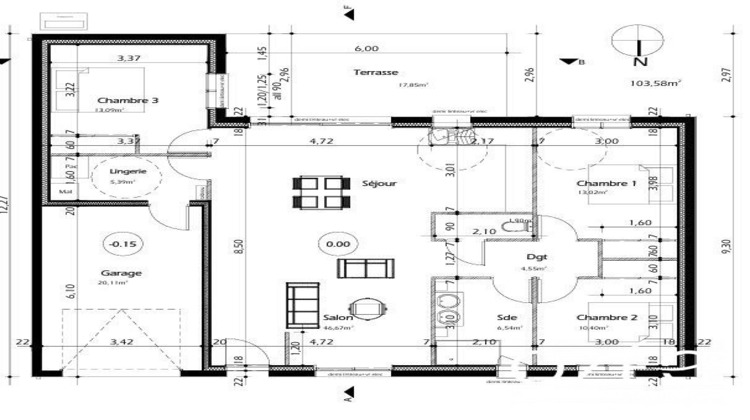
Pavillon composé d'une grande pièce à vivre avec une cuisine aménagée et équipée, 3 chambres, une salle de douche, un wc indépendant, une buanderie, un garage.
Le bien sera entièrement clôturé, exposé plein sud avec terrasse.
A prévoir en supplément assurance dommage 4500 Euros, provision taxe aménagement 3800.
Frais de notaire réduit à 2.5% ( au lieu de 7.5%) soit une économie d'environ 13 500Euros.
Classe énergie A, Classe climat A Montant estimé des dépenses annuelles d'énergie pour un usage standard : entre 410.00 et 460.00 sur les années 2021, 2022 et 2023 (abonnements compris). Les informations sur les risques auxquels ce bien est exposé sont disponibles sur le site Géorisques : georisques.gouv.fr.
Votre conseiller Ozéo : Grégory TREMBLAY
Agent commercial (Entreprise individuelle)
RSAC 892373556
RCP 127100479
- Type de bien : Maison
- DPE : A -< 51 kWh/².an
- GES : A -< 6 kg eq CO2/².an
- Surface : 124 m²
- Localisation : France - pays-de-la-loire - Maine et Loire
- Ville : Candé
- Code postal : 49440
- Annonce créée le 09/01/2026



