Vente Maison 77600, Bussy-Saint-Georges france 495 000 €
Descriptif du bien
Située à Bussy-Saint-Georges (limite Chanteloup-en-Brie) dans un secteur calme, verdoyant et proche de toutes commodités.
Maison refaite à neuf avec les dernières normes de construction, d'isolation, de chauffage et d'équipement.
D'une surface de 140 m2 habitable + grenier (180 m2 utile), vous profiterez de grand volume pour chaque pièces
- Séjour avec cuisine ouverte d'environ 65 m2
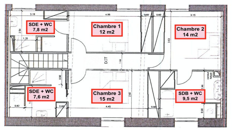
- Suite parentale d'environs 15 m2 avec salle de bain et WC privatif
- Deux chambres de 14 m2 et 12 m2, chacune avec salle d'eau privative
- Grand grenier pour stoker ou aménager un espace selon vos envies
Coté équipements et prestations :
- Pompe à chaleur air-air
- Isolation renforcé (thermique et phonique)
- Fenêtre double et/ou triple vitrage
- Volet roulant électrique
- Porte d'entrée en alu avec serrure sécurisé 3 points
- Robinetterie PORCHER
- WC suspendu
- Bac à douche 90x120 et ou x100
- Carrelage 60x60 au RDC
- Parquet dans les chambres et palier
Coté Avantage :
- Frais de notaire réduit, environs 2,5% (une économie d'environ 28.000 )
- Possibilité de financement par le prêt à 0%
- Garantie décennale sur le gros oeuvre
- Garantie biennale sur les équipements
Photos non contractuelle (projection 3D)
Honoraires à la charge du vendeur. Dans une copropriété de 6 lots. Aucune procédure n'est en cours. DPE en cours. Les informations sur les risques auxquels ce bien est exposé sont disponibles sur le site Géorisques : georisques.gouv.fr.
Votre conseiller We Invest France : Gael Bernardet
Agent commercial (Entreprise individuelle)
RSAC 2016AC00139 MEAUX.
Les informations sur les risques auxquels ce bien est exposé sont disponibles sur le site Géorisques : www.georisques.gouv.fr
- Type de bien : Maison
- Surface : 144 m²
- Localisation : France - ile-de-france - Seine et Marne
- Ville : Bussy-Saint-Georges
- Code postal : 77600
- Annonce créée le 10/04/2026





