Vente Maison 78980, Bréval france 380 000 €
Descriptif du bien
Nichée au coeur des Yvelines, notre nouvelle résidence Le Parc des Moissons, livrée en 2017, vous invite à vivre l'exceptionnel. Composée de 30 appartements lumineux, allant du T2 au T4, chaque logement bénéficie d'un espace extérieur : jardin, balcon ou terrasse, parfait pour savourer chaque instant en plein air. De plus, deux places de parking sont incluses pour votre confort.
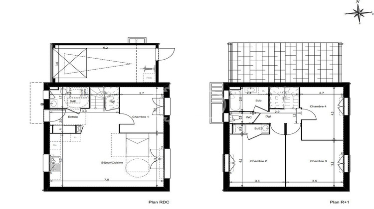
Nous vous présentons cette maison 5 pièces de 105 M² avec son jardin privatif de 580 M² ainsi que deux places de parking.
Pour les amateurs d'espace et de tranquillité, nous proposons également 30 appartement allant du T2 au T4, chacune dotée d'un jardin privatif, Terrasse ou balcon, idéal pour se ressourcer en famille.
Cette résidence haut de gamme se situe dans un cadre privilégié, à proximité immédiate de la gare, des commerces et des établissements scolaires. Offrez vous un cadre de vie alliant modernité et sérénité, où chaque détail a été pensé pour votre bien-être.
Venez découvrir le lieu où vos rêves prennent vie. **Bréval, votre nouvelle adresse d'exception !**
Frais de notaire réduit
Une seule agence, Heim immobilier, votre partenaire immobilier des Yvelines depuis deux générations
Honoraires à la charge du vendeur. Dans une copropriété de 46 lots. Aucune procédure n'est en cours. DPE en cours. Les informations sur les risques auxquels ce bien est exposé sont disponibles sur le site Géorisques : georisques.gouv.fr.
- Type de bien : Maison
- Surface : 105 m²
- Localisation : France - ile-de-france - Yvelines
- Ville : Bréval
- Code postal : 78980
- Annonce créée le 20/12/2024


