Vente Maison 85470, Bretignolles-sur-Mer france 450 000 €
Descriptif du bien
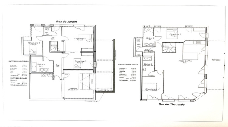
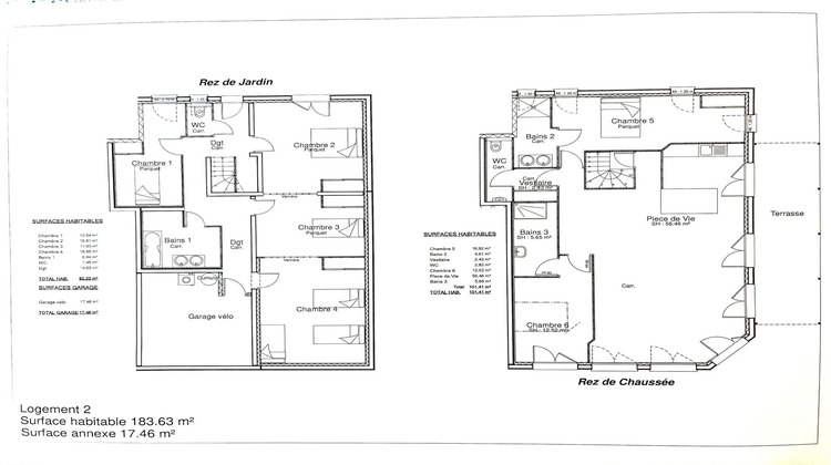
A 500 de la Mer et Plage des DUNES, sur un terrain de 326 m², une maison rénovée en 2023 avec plusieurs possibilités d'agencement comme par exemple: 3 à 6 chambres, 1 ou 2 logements ou un local professionnel avec une habitation.
Aujourd'hui le bien est sur 2 niveaux en rez-de-jardin d'environ 183 m² hab., comprenant au RDJ N°1= un grand séjour/cuisine, un vestiaire, un wc, une suite parentale avec une SDE, une terrasse couverte et au RDJ= 2 chambres, un dgt, une SDB, un WC, un bureau, une salle de jeux et un garage à vélo. Idéale pour vivre en toutes saisons proche Mer et plage.
Honoraires à la charge du vendeur. Classe énergie D, Classe climat B. Les informations sur les risques auxquels ce bien est exposé sont disponibles sur le site Géorisques : georisques.gouv.fr.
- Type de bien : Maison
- DPE : D - 151 à 230 kWh/².an
- GES : B - 6 à 10 kg eq CO2/².an
- Surface : 183 m²
- Localisation : France - pays-de-la-loire - Vendée
- Ville : Bretignolles-sur-Mer
- Code postal : 85470
- Disponible le 11/10/2025
- Annonce créée le 13/03/2026





