Vente Maison 22130, BOURSEUL france 395 000 €
Descriptif du bien
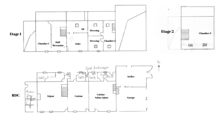
A seulement 4 km des commerces de Jugon-les-Lacs et 20 minutes des plages de Saint-Cast et Saint-Jacut, cette longère en pierre située à Bourseul bénéficie d'un environnement calme et préservé, sans route passante, sans mitoyenneté, sans servitude. . Un équilibre recherché entre campagne vivante et accessibilité, à 17 km de Dinan et Lamballe, 45 minutes de Rennes et Saint-Malo, avec gare TGV reliant Paris en 2h38. . Implantée au coeur d'un petit hameau, la propriété développe environ 265 m² habitables répartis en deux habitations attenantes reliées par deux accès intérieurs. . Cette configuration permet d'envisager une grande maison familiale, un projet d'accueil, une activité indépendante ou une organisation intergénérationnelle, tout en conservant une unité harmonieuse. . La rénovation conjugue le cachet de l'ancien, pierre apparente, poutres massives, volumes sous charpente, à des aménagements contemporains confortables et fonctionnels. . La cuisine principale, spacieuse et entièrement équipée avec îlot central, constitue un véritable coeur de maison. Le séjour offre une atmosphère chaleureuse grâce au poêle à bois et aux volumes ouverts favorisant la circulation et la luminosité. . L'ensemble comprend : - Une deuxième cuisine ouverte avec salon-séjour - Une suite parentale avec salle de bain complète (baignoire et douche) - Trois chambres supplémentaires - Une seconde salle de bain - Deux salles d'eau - Quatre WC . Des travaux réalisés entre 2017 et 2024 assurent un confort immédiat. Chauffage par chaudière à granulés avec local technique dédié et espace de stockage. Menuiseries en double vitrage (alu, bois et PVC). . Le terrain de 2 142 m² s'organise en deux espaces distincts : Au nord, un jardin clôturé avec cabane pour animaux. Au sud, un jardin arboré propice aux moments partagés en extérieur Deux garages fermés avec portes motorisées et grenier au-dessus, dépendances de stockage, four à pain et puits complètent l'ensemble. . Assainissement individuel à remettre aux normes. . Par sa surface, sa modularité et son emplacement stratégique entre littoral et axes principaux, ce bien offre un potentiel rare sur le secteur. Un dossier complet est disponible sur simple demande : plans, diagnostics et photos complémentaires. Je serai ravie d'échanger avec vous sur votre projet. . DPE : C/ GES : A | TF : 1033 euros Prix : 395000 euros HAI (honoraires à la charge du vendeur) . Montant estimé des dépenses annuelles d'énergie pour un usage standard entre 3420 et 4680 euros indexées aux années 2021, 2022 et 2023. . Pour visiter et vous accompagner dans votre projet, contactez Pia JOSEPH, au 0611816423 ou, par courriel à p.joseph@proprietes-privees.com. . Selon l'article L.561.5 du Code Monétaire et Financier, pour l'organisation de la visite, la présentation d'une pièce d'identité, entre autres, vous sera demandée. . Cette présente annonce a été rédigée sous la responsabilité éditoriale de Pia JOSEPH agissant sous le statut d'agent commercial immatriculé au RSAC CARCASSONNE 824 002 638 auprès de SAS PROPRIETES PRIVEES, au capital de 44 920 euros, ZAC LE CHÊNE FERRÉ - 44 ALLÉE DES CINQ CONTINENTS 44120 VERTOU; SIRET 487 624 777 00040, RCS Nantes. Carte Professionnelle Transactions sur immeubles et fonds de commerce (T) et Gestion immobilière (G) n°CPI 4401 2016 000 010 388 délivrée par la CCI Nantes - Saint Nazaire. Compte séquestre n°30932508467 BPA SAINT-SEBASTIEN-SUR-LOIRE (44230). Garantie GALIAN-SMABTP - 89 rue de la Boétie, 75008 Paris - n°28137 J pour 2 000 000 euros pour T et 120 000 euros pour G. Assurance responsabilité civile professionnelle par GALIAN-SMABTP n° de police 28137.J . Mandat réf : 440647 - Le professionnel garantit et sécurise votre projet immobilier. Pia JOSEPH (EI) Agent Commercial - Numéro RSAC : CARCASSONNE 824 002 638 - . Les informations sur les risques auxquels ce bien est exposé sont disponibles sur le site Géorisques : www. georisques. gouv. fr
- Type de bien : Maison
- DPE : C - 91 à 150 kWh/².an
- GES : A -< 6 kg eq CO2/².an
- Surface : 265 m²
- Localisation : France - Bretagne - Côtes d'Armor
- Ville : BOURSEUL
- Code postal : 22130
- Annonce créée le 28/02/2026





