Vente Maison 26460, Bourdeaux france 380 000 €
Descriptif du bien
Iad France - Antoine Gamore vous propose : Charmante Maison de Campagne avec Vaste Terrain à Bourdeaux dans la Drôme
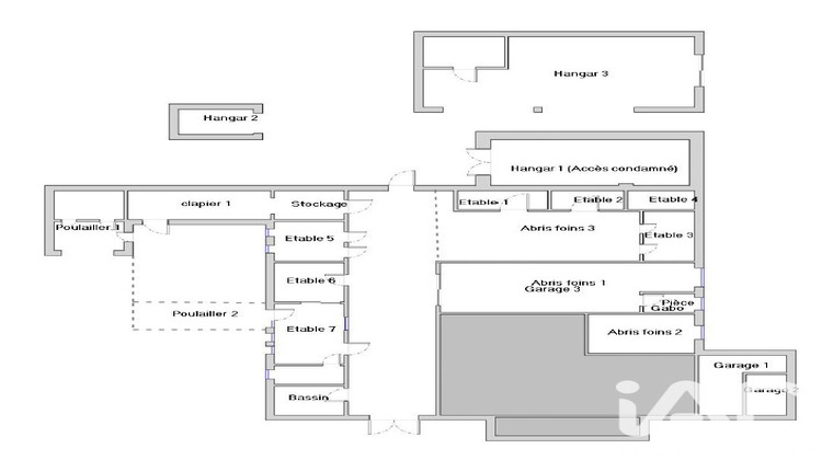
Ce corps de ferme situé à 3 minutes du village offre un cadre de vie authentique et paisible, idéal pour les amoureux de la nature et de l'air pur. Avec une surface habitable de 170 m² et 500 m² de dépendances sur un grand terrain de 12 200 m², cette propriété est parfaite pour ceux qui recherchent l'espace, la tranquillité et le charme d'une maison traditionnelle.
La maison comporte 8 pièces au total, dont 4 chambres, un bureau, une salle de bain, un WC, une cuisine, une salle à manger, un salon et un grand cellier. Les pièces sont lumineuses et spacieuses.
L'extérieur de la maison avec son parc paysager offre de vastes espaces pour se détendre et profiter de la nature. Les expositions sud et est garantissent un ensoleillement optimal tout au long de la journée, idéal pour les amateurs de jardins et de potagers. La vue est dégagée.
Pour les véhicules, la propriété dispose de 2 garages pour protéger vos voitures en toute sécurité. De plus, le terrain et les dépendances offrent de nombreuses possibilités d'aménagements selon vos envies.
Cette maison de campagne de caractère nécessite des travaux pour la remettre au goût du jour, mais offre un potentiel incroyable pour créer votre havre de paix à la campagne.
Honoraires d'agence à la charge du vendeur.
Information d'affichage énergétique sur ce bien : classe ENERGIE G indice 380 et classe CLIMAT G indice 120. Les informations sur les risques auxquels ce bien est exposé, y compris l'obligation légale de débroussaillement, sont disponibles sur le site Géorisques : http://www.georisques.gouv.fr.
La présente annonce immobilière a été rédigée sous la responsabilité éditoriale de M Antoine Gamore mandataire indépendant en immobilier (sans détention de fonds), agent commercial de la SAS I@D France immatriculé au RSAC de ROMANS sous le numéro 910690759, titulaire de la carte de démarchage immobilier pour le compte de la société I@D France SAS.
Informations LOI ALUR :
Honoraires charge vendeur. (gedeon_6727_32235826)
- Type de bien : Maison
- DPE : G -> 450 kWh/².an
- GES : G -> 80 kg eq CO2/².an
- Surface : 170 m²
- Localisation : France - Auvergne-Rhône-Alpes - Drôme
- Ville : Bourdeaux
- Code postal : 26460
- Annonce créée le 04/12/2025





