Vente Maison 92100, BOULOGNE-BILLANCOURT france 1 900 000 €
Descriptif du bien
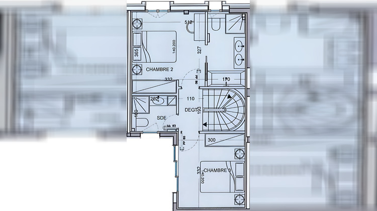
Boulogne Centre - Dans un cadre privilégié à proximité de l'hôtel de Ville - L'agence les Toits de Boulogne vous propose en avant-première un superbe projet de maison neuve de 147 m² de style contemporain avec prestations haut de gamme et matériaux de qualité. La maison se compose au rdc : Un studio avec kitchenette, salle d'eau et WC. Au 1er étage : Une salle à manger de 28 m² avec cuisine aménagée et équipée donnant sur la Terrasse. Au 2 ème étage : Un séjour de 28 m² , une chambre d'amis ou bureau. Au 3ème étage : Une chambre avec salle de bains et douches, WC, et une seconde chambre avec salle d'eau et WC. Combles aménagés en chambre master avec salle de bains, WC et dressing avec très belle hauteur sous plafond. Parking et local à vélo. Livraison prévue pour mars 2025 - Règlementation environnementale 2020 avec faibles charges. Frais de notaire réduits. Plan de l'architecte encore modifiables selon les besoins des futurs acquéreurs. Possibilité d'acquisition en plateaux bruts. Nous consulter. Les Toits de Boulogne-225 bd Jean Jaurès-92100 Boulogne Billancourt. (2.98 % honoraires TTC à la charge de l'acquéreur.) Copropriété de 8 lots ().
- Type de bien : Maison
- Surface : 147 m²
- Localisation : France - ile-de-france - Hauts de Seine
- Ville : BOULOGNE-BILLANCOURT
- Code postal : 92100
- Annonce créée le 26/08/2025






