Vente Maison 23400, Bosmoreau-les-Mines france 106 000 €
Descriptif du bien
Iad France - Cécile Doucet vous propose : Maison de bourg avec dépendances et fort potentiel
Située au cOEur d'un bourg, cette maison mitoyenne en pierres, pleine de charme, offre de beaux volumes et de nombreuses possibilités d'aménagement.
? Maison principale
Édifiée sur deux niveaux, elle se compose de :
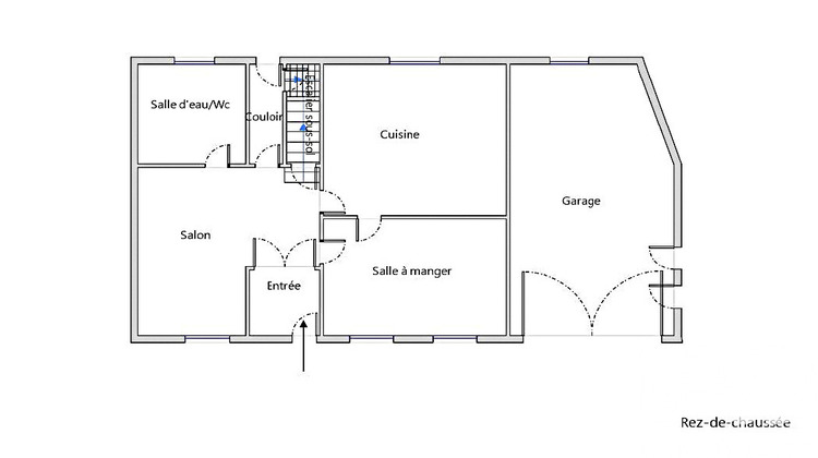
- Rez-de-chaussée :
- Entrée (3,28 m²)
- Salon spacieux (20,7 m²)
- Salle à manger (19,3 m²)
- Cuisine (18,3 m²)
- Salle de bain avec WC (8,5 m²)
- Étage :
- 3 grandes chambres (20 m², 22 m² et 16,5 m²)
- Salle de bain avec WC (7,9 m²)
- Annexes :
- Combles aménageables (75,7 m²)
- Cave sous la maison (33 m²)
- Garage (23,4 m²)
? Bâtiments supplémentaires
- Seconde maison à rénover entièrement (88 m²) avec garage (30 m²)
- Dépendances :
- Grange de 80 m²
- Grange de 57,8 m²
- Grange de 40,3 m²
? Terrain : Parcelle de 876 m².
Aspects techniques :
- Maison principale en très bon état général, peu de travaux à prévoir
- Beaux volumes et fort potentiel d'agrandissement
- Combles aménageables
- Double vitrage
- Raccordement au tout-à-l'égout
- Toitures en bon état
- Chauffage central au fioul
? Idéal pour projet familial, investissement locatif ou activité artisanale avec dépendances.
? Contactez-moi pour plus d'informations ou organiser une visite !
Honoraires d'agence à la charge du vendeur.
Information d'affichage énergétique sur ce bien : classe ENERGIE F indice 348 et classe CLIMAT F indice 71. Les informations sur les risques auxquels ce bien est exposé, y compris l'obligation légale de débroussaillement, sont disponibles sur le site Géorisques : http://www.georisques.gouv.fr.
La présente annonce immobilière a été rédigée sous la responsabilité éditoriale de Mme Cécile Doucet mandataire indépendant en immobilier (sans détention de fonds), agent commercial de la SAS I@D France immatriculé au RSAC de GUERET sous le numéro 828593012, titulaire de la carte de démarchage immobilier pour le compte de la société I@D France SAS.Informations LOI ALUR : Honoraires charge vendeur. (gedeon_6727_33071964)
- Type de bien : Maison
- DPE : F - 331 à 450 kWh/².an
- GES : F - 56 à 80 kg eq CO2/².an
- Surface : 146 m²
- Localisation : France - Nouvelle-Aquitaine - Creuse
- Ville : Bosmoreau-les-Mines
- Code postal : 23400
- Annonce créée le 16/04/2026





