Vente Maison 83230, Bormes-les-Mimosas france 536 000 €
Descriptif du bien
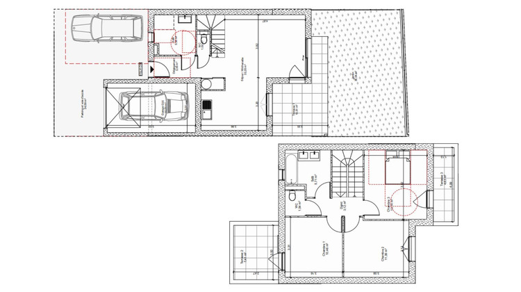
Iad France - Sarah Rozière (06 99 86 19 42) vous propose : Maison 4 pièces avec terrasses et jardin à Bormes-les-Mimosas.
Située chemin du Content, au cOEur d'un environnement naturel préservé, la résidence Le Parc du Content conjugue architecture provençale et douceur de vivre méditerranéenne. Implantée dans un quartier calme et arboré, cette adresse incarne sérénité et bien-être au quotidien. Disponible 2028.
Une maison raffinée :
Cette maison 4 pièces de 89 m² environ habitables se prolonge par une terrasse de 14 m² environ et un jardin privatif de 36 m² environ.
- Séjour lumineux de 33 m² environ.
- Trois chambres confortables.
- Salle d'eau et salle de bain modernes.
- Garage et Parking extérieur.
De belles prestations :
- Menuiseries extérieures à double vitrage isolant.
- Isolation thermique et acoustique renforcée.
- Espaces verts paysagers, domaine arboré et zones ombragées.
- Architecture provençale avec toitures traditionnelles, intégrée dans un environnement naturel.
L'art de vivre à Bormes-les-Mimosas :
- À proximité du village, de ses boutiques, restaurants et services.
- À quelques minutes des plages du Lavandou.
- Localisation idéale entre Hyères, Toulon et Saint-Tropez.
- Domaine paysager avec promenade végétalisée.
- Quartier calme et résidentiel, parfait pour profiter de la douceur méditerranéenne au quotidien.
N'hésitez pas à me contacter pour plus d'informations ou pour un accompagnement sur mesure.
Honoraires d'agence à la charge du vendeur. Bien non soumis au DPE. Les informations sur les risques auxquels ce bien est exposé sont disponibles sur le site Géorisques : www.georisques.gouv.fr. La présente annonce immobilière a été rédigée sous la responsabilité éditoriale de Mlle Sarah Rozière EI (ID 83696), mandataire indépendant en immobilier (sans détention de fonds), agent commercial de la SAS I@D France immatriculé au RSAC de Clermont-Ferrand sous le numéro 978616993, titulaire de la carte de démarchage immobilier pour le compte de la société I@D France SAS.
Retrouvez tous nos biens sur notre site internet. www.iadfrance.fr.Informations LOI ALUR : Honoraires charge vendeur. (gedeon_6727_32320031)
- Type de bien : Maison
- Surface : 89 m²
- Localisation : France - provence-alpes-cote-d-azur - Var
- Ville : Bormes-les-Mimosas
- Code postal : 83230
- Annonce créée le 16/04/2026



