Vente Maison 33000, Bordeaux france 695 000 €
Descriptif du bien
Iad France - Nancy Douchet vous propose : Belle maison bourgeoise à rénover à Saint-Genès.
Idéalement située dans le très recherché quartier Saint-Genès, d'une surface habitable de 175 m² sur trois niveaux offre un fort potentiel après rénovation. Un jardin de 50 m² et une cave double saine de 28 m² complètent le bien.
Le rez-de-chaussée comprend une entrée, un salon, une salle à manger, une cuisine, une buanderie et un wc, le tout donnant sur le jardin.
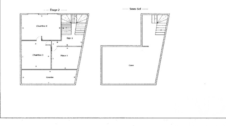
Le 1er étage comprend deux grandes chambres et deux petites chambres, une salle de bains, deux salles d'eau et deux wc.
Le 2nd étage comprend trois chambres (bureaux), deux salles d'eau et un grenier à aménager. Possibilité d'agrandir deux chambres sur le grenier et de créer une salle d'eau supplémentaire.
La toiture a été refaite en 2024.
Rénovation complète à prévoir le reste de la maison avec un gros potentiel pour l'imaginer à votre goût.
Travaux de rénovation énergétique chiffrés (me contacter pour plus de précision).
Possibilité d'obtenir une place de stationnement attitrée proche de la maison.
Contactez-moi rapidement pour une visite.
Honoraires d'agence à la charge du vendeur.
Information d'affichage énergétique sur ce bien : classe ENERGIE E indice 261 et classe CLIMAT E indice 51. Les informations sur les risques auxquels ce bien est exposé, y compris l'obligation légale de débroussaillement, sont disponibles sur le site Géorisques : http://www.georisques.gouv.fr.
La présente annonce immobilière a été rédigée sous la responsabilité éditoriale de Mme Nancy Douchet mandataire indépendant en immobilier (sans détention de fonds), agent commercial de la SAS I@D France immatriculé au RSAC de Bordeaux sous le numéro 949852032, titulaire de la carte de démarchage immobilier pour le compte de la société I@D France SAS.Informations LOI ALUR : Honoraires charge vendeur. (gedeon_6727_32827413)
- Type de bien : Maison
- DPE : E - 231 à 330 kWh/².an
- GES : E - 36 à 55 kg eq CO2/².an
- Surface : 175 m²
- Localisation : France - Nouvelle-Aquitaine - Gironde
- Ville : Bordeaux
- Code postal : 33000
- Annonce créée le 16/04/2026




