Vente Maison 33000, Bordeaux france 325 000 €
Descriptif du bien
VOTRE MAISON INDIVIDUELLE AVEC JARDIN PROCHE DE TOUTES LES COMMODITÉS
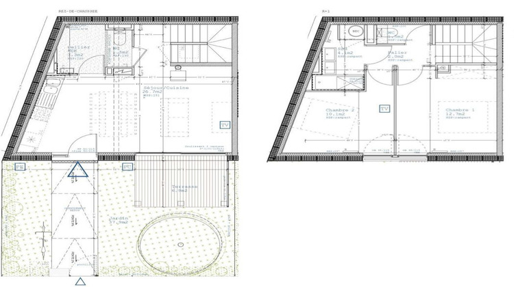
Idéalement située, à proximité des écoles, des commerces et du Tramway, venez découvrir cette maison de 3 pièces de 62 m² avec jardin et parking.
Elle est se compose d'une jolie pièce de vie de 27m2 ouverte sur le jardin et la terrasse.
Un cellier et un WC indépendant sont aussi présent au rez-de-chaussée.
À l'étage, le côté nuit se compose de deux belles chambres, d'une salle d'eau et d'un second WC indépendant.
Une place de parking complète ce bien.
- Prix TVA 5,5% avec parking : 325 000
- Prix TVA 20% avec parking : 404 300
- Frais de notaire réduits
- Garanties
- ...
VOTRE MAISON INDIVIDUELLE AVEC JARDIN PROCHE DE TOUTES LES COMMODITÉS
Honoraires à la charge du vendeur. DPE en cours. Les informations sur les risques auxquels ce bien est exposé sont disponibles sur le site Géorisques : georisques.gouv.fr.
Votre conseiller RH Patrimoine : Alexandre VINEE-MUNOZ
Agent commercial (Entreprise individuelle)
RSAC 914 405 907
RCP MA035A20ANPM/02 - AACI/21951/28208
- Type de bien : Maison
- Surface : 62 m²
- Localisation : France - Nouvelle-Aquitaine - Gironde
- Ville : Bordeaux
- Code postal : 33000
- Annonce créée le 19/09/2025





