Vente Maison 78390, Bois-d'Arcy france 520 000 €
Descriptif du bien
Petite résidence plein centre Bois D'Arcy en construction en cours de travaux, pour 4è trimestre 2026.
Maison de ville sur comprenant :
- Au rez de chaussée : Séjour traversant de 36,65m2, salle d'eau, wc, jardin 95m2, abri jardin/vélos, deux parkings,
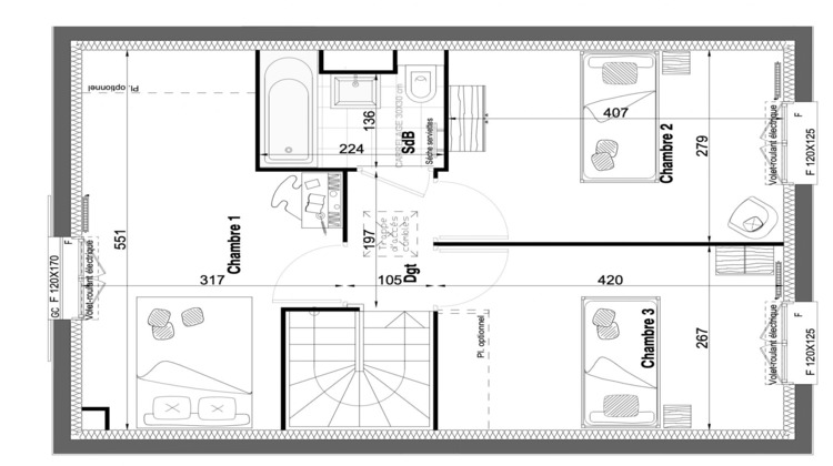
- A l'étage : 3 chambres 14,15-11,5-11,2m2, salle de bains wc.
Pompe à chaleur, normes RE2020.
Régime VEFA : tout est inclus (peintures, engazonnement etc), rien à prévoir sauf la cuisine.
Frais de notaire réduits (2%).
Nous Consulter
Honoraires à la charge du vendeur. Non soumis au DPE. Les informations sur les risques auxquels ce bien est exposé sont disponibles sur le site Géorisques : georisques.gouv.fr.
Votre conseiller MON BIEN A LA MER : Gérant - .fr MON BIEN A LA MER
Carte T CPI 2201 2018 000 025 040
RCP ACM IARD B1 7025278
- Type de bien : Maison
- Surface : 86 m²
- Localisation : France - ile-de-france - Yvelines
- Ville : Bois-d'Arcy
- Code postal : 78390
- Annonce créée le 20/03/2026





