Vente Maison 01700, BEYNOST france 350 000 €
Descriptif du bien
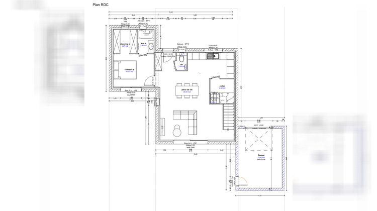
EMOTION Architectures vous présente ce projet de maison neuve idéalement situé au fond d'une impasse. Proche de toutes les commodités, ce projet possède déjà un permis de construire accepté vous permettant le début de la construction rapidement ainsi qu'un prix ferme et définitif. La maison de 105m2 habitable, se composera d'une entrée indépendante avec un WC, d'une agréable pièce de vie ouverte, un cellier/buanderie, ainsi qu'une suite parentale avec dressing et salle d'eau. Un garage viendra compléter le rdc. A l'étage, 3 chambres seront créées ainsi qu'un WC supplémentaire et une SDB. La maison sera édifiée sur un terrain de 420m2 parfaitement au calme. Le terrassement et les raccordements sont déjà prévus dans le prix. EMOTION ARCHITECTURES s'engage à vous accompagner dans votre projet totalement PERSONNALISABLE et SUR MESURE tout en maîtrisant votre budget et met à votre disposition son conseiller travaux ainsi que son architecte : - analyses et études de faisabilités - conception de plans uniques à chaque client et modélisation 3D - obtention des différentes autorisations administratives - accompagnement dans le suivi du projet jusqu'à la remise des clés Construire l'émotion, Bâtir l'avenir. Notre priorité est votre satisfaction! Nous prenons le temps nécessaire pour bâtir une relation de confiance avec chacun de nos clients. Contactez nous dès à présent au 06.14.50.37.09 afin que nous étudions et réalisions ensemble le projet qui vous ressemble.
- Type de bien : Maison
- Surface : 105 m²
- Localisation : France - Auvergne-Rhône-Alpes - Ain
- Ville : BEYNOST
- Code postal : 01700
- Annonce créée le 23/12/2025


