Vente Maison 27210, BEUZEVILLE france 117 000 €
Descriptif du bien
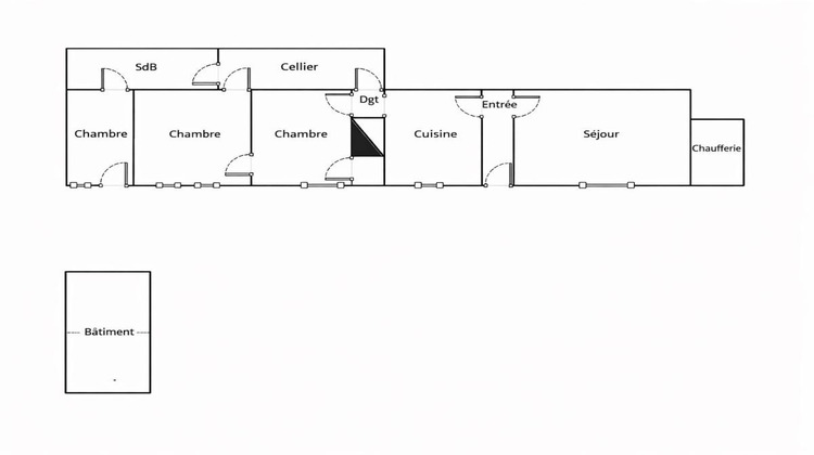
27210 Beuzeville à découvrir maison à proximité immédiate du centre ville et de ses commerces et écoles, à seulement 15 minutes de Honfleur et du Pont de Normandie. Cette maison plain -pied à rénover d'environ 80 m² est composée d'une entrée, un séjour, une cuisine, 3 chambres, une buanderie, une salle de bain avec WC, une ancienne chaufferie. Un bâtiment à usage de stockage qui offre un potentiel supplémentaire vient compléter ce bien édifié sur un terrain clos et plat d'environ 642 m². Travaux à prévoir, assainissement tout à l'égout conforme. Non soumis au DPE car pas de système de chauffage. Taxe foncière 965 euros Prix: 117 000 Euros honoraires de négociation de 6.36 % ( soit 7000 euros TTC) à la charge de l'acquéreur soit 110 000 euros net vendeur hors honoraires. Pour visiter et vous accompagner dans votre projet, contactez Vanessa BERNARD, au 0651960509 ou, par courriel à va.bernard@proprietes-privees.com. Selon l'article L.561.5 du Code Monétaire et Financier, pour l'organisation de la visite, la présentation d'une pièce d'identité vous sera demandée. Cette présente annonce a été rédigée sous la responsabilité éditoriale de Vanessa BERNARD agissant sous le statut d'agent commercial immatriculé au RSAC BERNAY 514209857 auprès de SAS PROPRIETES PRIVEES, au capital de 44 920 euros, ZAC LE CHÊNE FERRÉ - 44 ALLÉE DES CINQ CONTINENTS 44120 VERTOU; SIRET 487 624 777 00040, RCS Nantes. Carte Professionnelle Transactions sur immeubles et fonds de commerce (T) et Gestion immobilière (G) n°CPI 4401 2016 000 010 388 délivrée par la CCI Nantes - Saint Nazaire. Compte séquestre n°30932508467 BPA SAINT-SEBASTIEN-SUR-LOIRE (44230). Garantie GALIAN-SMABTP - 89 rue de la Boétie, 75008 Paris - n°28137 J pour 2 000 000 euros pour T et 120 000 euros pour G. Assurance responsabilité civile professionnelle par GALIAN-SMABTP n° de police 28137.J Mandat réf : 446521- Le professionnel garantit et sécurise votre projet immobilier. (6.36 % honoraires TTC à la charge de l'acquéreur.) Vanessa BERNARD (EI) Agent Commercial - Numéro RSAC : BERNAY 514209857 - . Les informations sur les risques auxquels ce bien est exposé sont disponibles sur le site Géorisques : www. georisques. gouv. fr





