Vente Maison 33830, Belin-Beliet france 245 000 €
Descriptif du bien
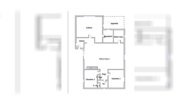
Située dans un secteur calme et recherché de Belin-Béliet, cette maison d'environ 110 m² offre de belles possibilités d'aménagement.
Elle se compose d'une spacieuse cuisine, d'un séjour, de quatre chambres et d'un garage indépendant.
Le tout est implanté sur un terrain de 770 m², facile à entretenir et agréable à vivre.
Des travaux de rafraîchissement sont à prévoir, vous permettant de façonner chaque espace selon vos envies.
C'est une opportunité idéale pour les amateurs de rénovation souhaitant créer une maison à leur image, dans un environnement paisible, à proximité des commerces et des axes principaux.
Les informations sur les risques auxquels ce bien est exposé sont disponibles sur le site Géorisques : www.georisques.gouv.fr
Prix de vente honoraires d'agence inclus : 245 000 ¤
Prix de vente hors honoraires d'agence : 235 445 ¤
Honoraires charge acquéreur : 9 555 ¤ soit 4,06 % TTC de la valeur du bien hors honoraires
Contactez votre conseiller SAFTI : Henry DA CUNHA, Tél. : 07 49 17 77 38, E-mail : henry.dacunha@safti.fr - EI - Agent commercial immatriculé au RSAC de Mont-de-Marsan sous le numéro 532259264.
Informations LOI ALUR :
Honoraires : 4.06 % TTC charge acquéreur.
Prix hors honoraires : 235 445 ¤. (gedeon_26118_32038096)
- Type de bien : Maison
- DPE : E - 231 à 330 kWh/².an
- GES : B - 6 à 10 kg eq CO2/².an
- Surface : 110 m²
- Localisation : France - Nouvelle-Aquitaine - Gironde
- Ville : Belin-Beliet
- Code postal : 33830
- Annonce créée le 23/10/2025




