Vente Maison 64100, Bayonne france 440 000 €
Descriptif du bien
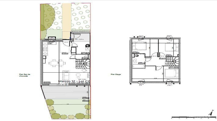
Iad France - Gaëlle Ferrand Grout (06 41 07 93 15) vous propose : Au cOEur du quartier du Séqué, découvrez cette maison neuve de 103 m² environ pensée pour offrir un cadre de vie confortable, fonctionnel et lumineux. Répartie sur deux niveaux, elle propose au rez-de-chaussée une vaste pièce de vie de près de 39 m² environ réunissant séjour et cuisine, offrant une atmosphère ouverte et conviviale. Vous trouverez également un wc. Idéal pour les moments de détente en extérieur, vous profiterez d'une terrasse de 17 m² environ prolongée par un jardin privatif de 23 m² environ exposé sud-est. À l'étage, l'espace nuit comprend trois chambres, dont une suite parentale généreuse de 16 m² environ, garantissant intimité et confort. Une salle de bains / wc complète cet étage. L'agencement a été étudié pour répondre aux attentes actuelles, que ce soit pour une résidence principale ou un investissement. Côté pratique, le bien dispose de deux places de stationnement privatives ainsi que d'un local vélo de 9 m² environ, facilitant l'organisation du quotidien. La situation est un véritable atout : à seulement dix minutes du centre-ville et de la gare, à vingt minutes des plages, avec des transports accessibles à pied et des établissements scolaires à proximité immédiate. Ce projet offre l'opportunité d'acquérir un bien neuf dans un secteur recherché, bénéficiant des standards actuels en matière de confort et de qualité de construction. La livraison est prévue au quatrième trimestre 2027. Le programme propose plusieurs maisons allant de 92 m² environ à 103 m² environ, contactez-moi pour en savoir plus ! Honoraires d'agence à la charge du vendeur. Bien non soumis au DPE. Les informations sur les risques auxquels ce bien est exposé sont disponibles sur le site Géorisques : www.georisques.gouv.fr. La présente annonce immobilière a été rédigée sous la responsabilité éditoriale de Mlle Gaëlle Ferrand Grout EI (ID 76027), mandataire indépendant en immobilier (sans détention de fonds), agent commercial de la SAS I@D France immatriculé au RSAC de BAYONNE sous le numéro 904423860, titulaire de la carte de démarchage immobilier pour le compte de la société I@D France SAS. Retrouvez tous nos biens sur notre site internet. www.iadfrance.fr.Informations LOI ALUR : Honoraires charge vendeur. (gedeon_6727_32975002)
- Type de bien : Maison
- Surface : 103 m²
- Localisation : France - Nouvelle-Aquitaine - Pyrénées-Atlantique
- Ville : Bayonne
- Code postal : 64100
- Annonce créée le 02/04/2026


