Vente Maison 65690, Barbazan-Debat france 239 000 €
Descriptif du bien
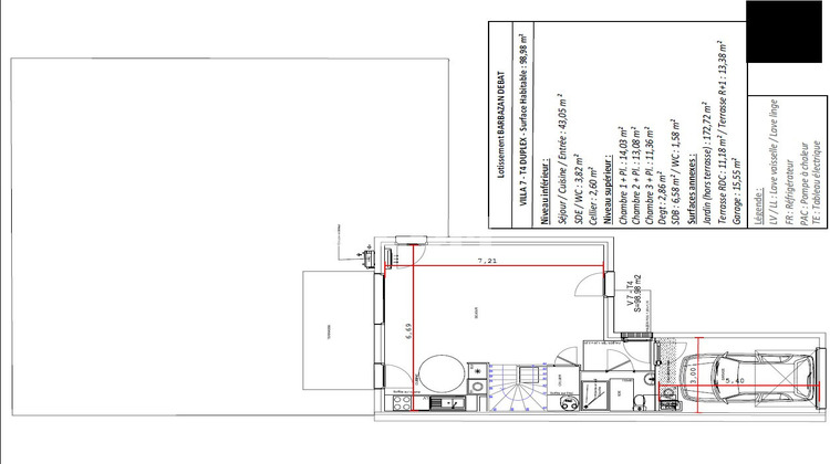
BARBAZAN-DEBAT, à proximité immédiate de Tarbes, découvrez cette maison T4 de 98,98 m2, actuellement en construction, située dans un nouveau lotissement calme, proche du centre et de toutes les commodités : commerces, écoles, nombreuses associations sportives et pôle médical.
Cette maison à étage offre, au rez-de-chaussée, une cuisine ouverte sur un salon-séjour lumineux donnant accès à la terrasse, une salle d'eau avec WC et d'un cellier. Vous bénéficierez également d'un garage, d'un jardin privatif de 186 m2, entièrement piscinable.
À l'étage, vous trouverez trois chambres avec placards, une salle de bain équipée d'un sèche-serviettes, un WC indépendant et une terrasse.
La maison est dotée d'une pompe à chaleur et de panneaux rayonnants pour un meilleur confort.
Livraison prévue pour décembre 2026.
N'hésitez pas à me contacter au 06 64 83 54 22 ou par mail catherinepalacios@regm.immo pour avoir plus de renseignements.
Ce bien vous est présenté par Catherine Palacios EI - Réseau REGM
- Annonce rédigée et publiée par un Agent Mandataire -
- Type de bien : Maison
- GES : A -< 6 kg eq CO2/².an
- Surface : 98 m²
- Localisation : France - Occitanie - Hautes-Pyrénées
- Ville : Barbazan-Debat
- Code postal : 65690
- Annonce créée le 26/11/2025





