Vente Maison 56870, BADEN france 785 000 €
Descriptif du bien
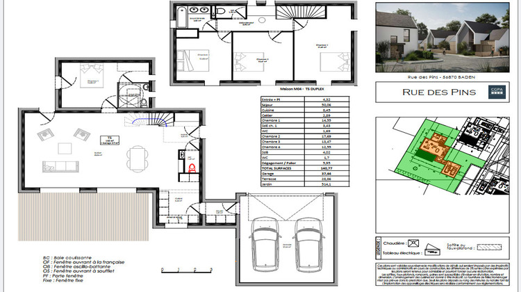
Cette maison d'architecte est nichée en coeur du bourg de Baden dans son environnement paisible. Ce projet conçu par un architecte s'inscrit dans une résidence de qualité soigneusement aménagée, préservant ainsi l'esprit hameau avec des espaces verts naturels dans une démarche écologique. De type 6, cette maison contemporaine offre une superficie totale de 141 m² environ plus un garage double et s'inscrit sur une parcelle de 696 m². La vie s'y organise en toute convivialité au rez-de-chaussée, avec un séjour avec une cuisine ouverte donnant sur une terrasse bois exposée au sud, une chambre parentale avec sa salle d'eau privative et un WC invité. Un cellier et un garage double attenant complète ce niveau. A l'étage, un palier mène à trois chambres, une salle de bain et un WC indépendant. Une attention particulière a été portée à la fluidité, la luminosité et l'utilisation de matériaux de qualité, afin d'en faire un un lieu de vie où règnent confort et douceur de vivre. Elle est proposée avec des finitions de qualité (peintures, revêtements de sol : parquet massif contrecollé et carrelages grand format, salles d'eau équipées). Son exposition sud, l'utilisation de matériaux RE 2020, une pompe à chaleur, la possibilité d'installer le poêle à pellets favorisent un niveau de performance énergétique de grande qualité. Un véritable projet de vie au coeur de Baden, à proximité immédiate des commerces, et à pied ou en vélos des plages et sentiers côtiers, d'un golf 18 trous, d'un chantier naval.. A seulement 20 minutes de Vannes et 15 minutes d'Auray et à 2h30 de Paris en TGV. Prix : 785 000 euros les honoraires sont à la charge du vendeur. Pour vous accompagner dans votre projet, et pour plus d'informations, n'hésitez pas à me contacter au 06 16 57 45 68 ou par e-mail. Cette annonce est rédigée sous la responsabilité éditoriale de Sibylle VINCHON, consultante en immobilier immatriculée au RSAC de Vannes sous le numéro 448 662 783, agissant pour le compte de la SAS PROPRIETES PRIVEES, réseau national immobilier sur internet. Adresse du siège social : ZAC du Chêne Ferré, 44 Allée des Cinq Continents, 44120 VERTOU, RCS NANTES n° 487 624 777. Carte professionnelle T et G n° CPI 4401 2016 000 010 388 délivrée par la CCI Nantes-Saint Nazaire. Garantie GALIAN, 89 rue La Boétie, 75008 Paris - Montants de garantie financière : 1 500 000 euros pour le fonds et 120 000 euros pour la responsabilité civile. Mandat ref : 417667 - Le professionnel garantit et sécurise votre projet immobilier. Sibylle VINCHON (EI) Agent Commercial - Numéro RSAC : VANNES 448662783 - .


