Vente Maison 49240, AVRILLE france 389 000 €
Descriptif du bien
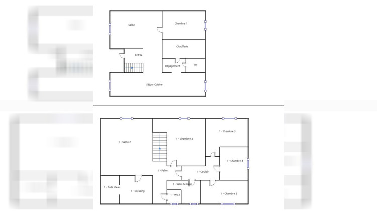
A VENDRE Parc de la Haye, Maison non mitoyenne de plus de 140m2 sur un terrain de 500m2. Située dans un secteur privilégié et au calme, elle se compose au rez-de-chaussée d'un salon-séjour, d'une grande cuisine aménagée et équipée dînatoire donnant sur la terrasse exposée sud, d'une chambre, arrière cuisine, wc et cellier. A l'étage, vous retrouverez, un wc, 4 chambres, salle de bains avec baignoire et douche, ainsi qu'une suite parentale avec dressing et salle d'eau avec douche. Jardin clos et sans vis-à-vis, abri de jardin, stationnement plusieurs véhicules sur la parcelle. Toiture ardoise naturelle Contactez dès maintenant Romuald GUIMBRETIÈRE de votre agence immobilière Home Sweet Home au 06 11 53 79 96 pour plus d'informations et pour organiser une visite. 273 rue Saumuroise et 2 rue des Lices, Angers (3.73 % honoraires TTC à la charge de l'acquéreur.) Romuald GUIMBRETIERE (EI) Agent Commercial - Numéro RSAC : - .
- Type de bien : Maison
- DPE : D - 151 à 230 kWh/².an
- GES : D - 21 à 35 kg eq CO2/².an
- Surface : 146 m²
- Localisation : France - pays-de-la-loire - Maine et Loire
- Ville : AVRILLE
- Code postal : 49240
- Annonce créée le 10/02/2026




