Vente Maison 95430, Auvers-sur-Oise france 205 000 €
Descriptif du bien
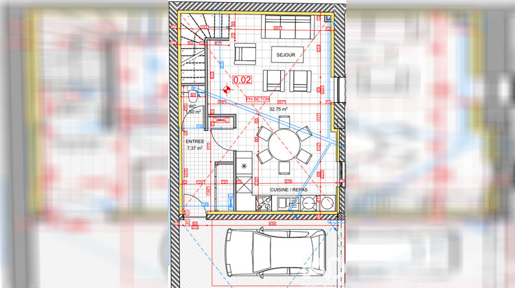
Iad France - Julie LANGRADE vous propose : Auvers-sur-Oise - Environ 110 m² à aménager selon vos envies
Au cOEur d'un ancien corps de ferme typique du Vexin, en pierre de moellon, ce lot offre une belle opportunité de création sur mesure.
Le bâti a déjà fait l'objet d'une réhabilitation structurelle complète : façades, toiture, planchers, huisseries, réseaux et évacuations ont été réalisés. La viabilisation est en place.
Il reste désormais à imaginer et aménager l'intérieur selon vos envies.
Le bien développe environ 135 m² de surface plancher, permettant la création d'environ 110 m² habitables après aménagement.
La projection actuelle propose :
- au rez-de-chaussée : une pièce de vie avec cuisine ouverte,
- à l'étage : jusqu'à quatre chambres, deux salles de bain et un espace dressing.
Vous bénéficierez également :
- d'une cour commune à l'ensemble,
- de deux places de stationnement privatives.
L'ensemble n'est pas soumis au régime classique de la copropriété, ce qui permet un cadre plus souple tout en conservant une organisation claire des volumes.
Ce bien s'adresse à des acquéreurs souhaitant optimiser leur budget en réalisant eux-mêmes tout ou partie des travaux intérieurs, et créer un lieu de vie personnalisé dans un environnement recherché.
Honoraires d'agence à la charge du vendeur.
Bien non soumis au DPE. Les informations sur les risques auxquels ce bien est exposé, y compris l'obligation légale de débroussaillement, sont disponibles sur le site Géorisques : http://www.georisques.gouv.fr.
La présente annonce immobilière a été rédigée sous la responsabilité éditoriale de Mme Julie LANGRADE mandataire indépendant en immobilier (sans détention de fonds), agent commercial de la SAS I@D France immatriculé au RSAC de Pontoise sous le numéro 512611476, titulaire de la carte de démarchage immobilier pour le compte de la société I@D France SAS.Informations LOI ALUR : Honoraires charge vendeur. (gedeon_6727_32706803)
- Type de bien : Maison
- Surface : 114 m²
- Localisation : France - ile-de-france - Val d'oise
- Ville : Auvers-sur-Oise
- Code postal : 95430
- Annonce créée le 16/04/2026





