Vente Maison 74200, ANTHY-SUR-LEMAN france 581 000 €
Descriptif du bien
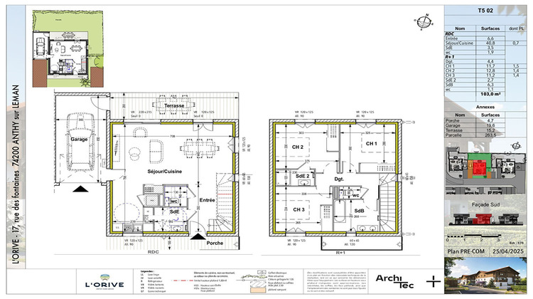
Sur la commune prisée d'Anthy-sur-Léman, dans un environnement verdoyant et proche des commodités essentielles, au sein de la nouvelle résidence L'ORIVE. Maison mitoyenne de 103m² composé au rez de chaussée : Une entrée, un séjour/salon/cuisine, une salle d'eau et un WC séparé. A l'étage, 3 chambres avec placard dont une avec salle d'eau privative, une salle de bains et un WC séparé. Une terrasse 15.2m² donnant sur un jardin vous permettra de profiter de l'extérieur et des journée ensoleillées. Pour d'avantage de praticité, un garage complète ce bien. Découvrez encore plus d'annonces sur notre site www.sweethomeleman.fr Estimez également votre bien gratuitement et rapidement en ligne : https://www.sweethomeleman.fr/content/3/estimation.html
- Type de bien : Maison
- Surface : 103 m²
- Localisation : France - Auvergne-Rhône-Alpes - Savoie (Haute)
- Ville : ANTHY-SUR-LEMAN
- Code postal : 74200
- Annonce créée le 24/06/2025




