Vente Maison 17690, Angoulins france 535 000 €
Descriptif du bien
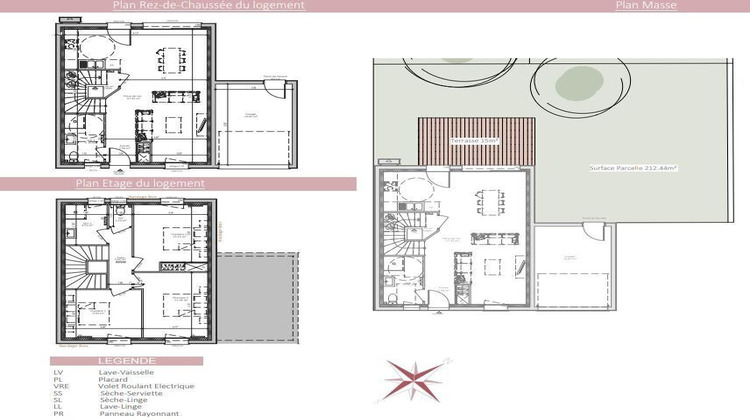
Iad France - Antoine Collignon (06 49 22 45 85) vous propose : MAISON T4 - 3 CHAMBRES - GARAGE - PLACE DE PARKING AERIEN
Situé sur la charmante commune de Angoulins, à proximité de l'océan et des commodités, découvrez ce magnifique T4 neuf, idéal pour une famille.
Ce logement moderne et lumineux se compose de :
- 3 chambres à l'étage, offrant un espace nuit confortable et bien séparé
- 2 salles d'eau, pratiques pour le quotidien
- Un grand salon-séjour avec une cuisine ouverte complète la pièce de vie de 35 m² environ
Côté extérieur, une terrasse, un garage et un jardin viendra compléter cette belle maison.
- Éligible au Prêt à Taux Zéro (PTZ), une opportunité idéale pour devenir propriétaire dans des conditions avantageuses.
La charmante commune de Angoulins séduit par son cadre de vie privilégié entre terre et océan. À seulement quelques minutes de La Rochelle, elle offre un parfait équilibre entre tranquillité résidentielle et dynamisme urbain. La commune dispose également de toutes les commodités essentielles : commerces, écoles, infrastructures sportives, tout en bénéficiant de la proximité immédiate de La Rochelle pour les services, les études et les loisirs.
Honoraires d'agence à la charge du vendeur. Bien non soumis au DPE. Les informations sur les risques auxquels ce bien est exposé sont disponibles sur le site Géorisques : www.georisques.gouv.fr. La présente annonce immobilière a été rédigée sous la responsabilité éditoriale de M. Antoine Collignon EI (ID 90640), mandataire indépendant en immobilier (sans détention de fonds), agent commercial de la SAS I@D France immatriculé au RSAC de LA ROCHELLE sous le numéro 991549304, titulaire de la carte de démarchage immobilier pour le compte de la société I@D France SAS.
Retrouvez tous nos biens sur notre site internet. www.iadfrance.fr.Informations LOI ALUR : Honoraires charge vendeur. (gedeon_6727_33095103)
- Type de bien : Maison
- Surface : 92 m²
- Localisation : France - Nouvelle-Aquitaine - Charente Maritime
- Ville : Angoulins
- Code postal : 17690
- Annonce créée le 23/04/2026





