Vente Maison 64600, ANGLET france 399 000 €
Descriptif du bien
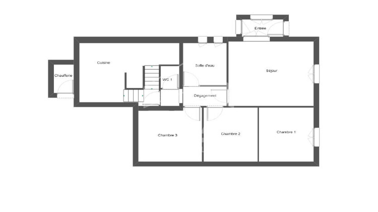
Maison à vendre - Anglet Brindos - Cette maison de plus de 100m² sur parcelle de 340m² sera parfaite pour votre projet personnel ou professionnel et vous permettra également d'allier les deux. Actuellement aménagée en bureaux, elle est vendue à usage d'habitation. Vous pourrez y emménager après un simple coup de peinture bien qu'idéalement elle nécessite des travaux d'isolation. Au RDC, une entrée, un séjour ou espace d'accueil avec chambre attenante, un dégagement desservant deux chambres, une pièce d'eau récemment refaite, des WC séparés et une grande cuisine/salle à manger, vrai espace convivial, ouvrant sur terrasse et jardin sud ouest à l'abris des regards. A l'étage, deux chambres, un débarras, des wc et deux greniers. Elle est agrémentée de deux stationnements privatifs. ERA CAP OCEAN - 98 avenue de Biarritz - 64600 Anglet Téléphone : 05.59.41.42.30 Toutes nos annonces sur www.era-immobilier-anglet.fr Copropriété de 9 lots - dont 3 lots habitation. Céline FRESCHI (EI) Agent Commercial - Numéro RSAC : 829198696 - Bayonne.
- Type de bien : Maison
- DPE : F - 331 à 450 kWh/².an
- GES : C - 11 à 20 kg eq CO2/².an
- Surface : 103 m²
- Localisation : France - Nouvelle-Aquitaine - Pyrénées-Atlantique
- Ville : ANGLET
- Code postal : 64600
- Annonce créée le 10/03/2026





