Vente Maison 44150, Anetz france 229 900 €
Descriptif du bien
Pavillon individuel de 106m2 sur la commune d'Anetz, situé dans un hameau à 5 minutes d'Ancenis sur un terrain entièrement clos de 2975m2.
Ce bien est composé au rez de chaussée, d'une cuisine aménagée et équipée, un salon-séjour avec cheminée, une salle de douche, wc indépendant, trois chambres et à l'étage deux chambres et wc
A noter assainissement non conforme.
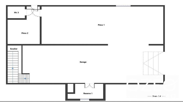
Maison entièrement sur sous sol d'environ 97m2.
Honoraires inclus de 4.5% TTC à la charge de l'acquéreur. Prix hors honoraires 220 000 . Classe énergie E, Classe climat C Montant estimé des dépenses annuelles d'énergie pour un usage standard : entre 1500.00 et 1900.00 sur les années 2021, 2022 et 2023 (abonnements compris). Les informations sur les risques auxquels ce bien est exposé sont disponibles sur le site Géorisques : georisques.gouv.fr.
Votre conseiller Ozéo : Grégory TREMBLAY
Agent commercial (Entreprise individuelle)
RSAC 892373556
RCP 127100479
- Type de bien : Maison
- DPE : E - 231 à 330 kWh/².an
- GES : C - 11 à 20 kg eq CO2/².an
- Surface : 106 m²
- Localisation : France - pays-de-la-loire - Loire Atlantique
- Ville : Anetz
- Code postal : 44150
- Annonce créée le 06/03/2026




