Vente Maison 80000, Amiens france 199 900 €
Descriptif du bien
Votre Agence Immobilière HAP IMMOBILIER de Longueau vous présente tout nouveau en exclusivité
Amiens Secteur recherché: HENRIVILLE rue Gauthier de Rumilly (proximité lycées, cliniques privées, Gare)
Maison de ville des années 1920 d'envion 95m2 au sol total (grenier inclus) sur 2 niveaux, belle façade brique avec cour de 17m2 environ, cave et grand grenier aménageable.
Vous serez séduits par son cachet préservé (parquets d'origine, carreaux de ciment, cheminées, belle hauteur sous plafond et moulures)
Entrée sur couloir, séjour/salon de 25m2 parquetés avec placards et cheminée, cuisine, wc indépendant et salle de douche.
Etage sur palier desservant 2 chambres de 14.40 et 10.50m2 dont 1 avec placard et cheminée
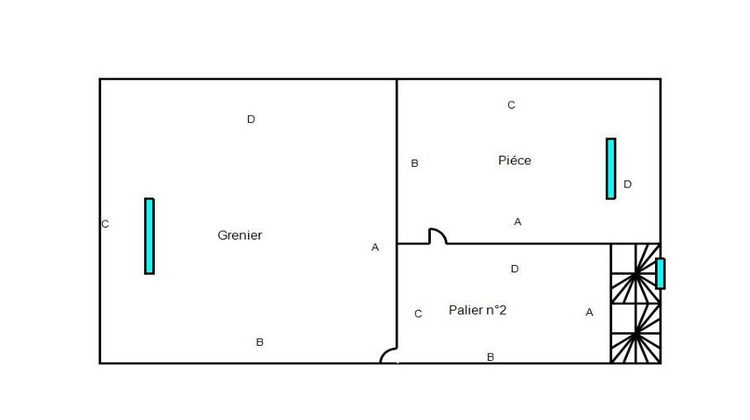
Etage sur palier, pièce et grenier à aménager: capacité 2 chambres avec une belle hauteur sous plafond et charpente traditionnelle.
En complément: cave voutée, cour de 17m2 environ parfaitement exposée.
++ Belle façade, double vitrage, VRE en façade.
+++Secteur très recherché d'Henriville à proximité des axes principaux, lycées, cliniques privées et CHU à 4.5km
++++ capacité 4 belles chambres
Prévoir quelques travaux (chauffage, électricité, cuisine, salle de douche)
Foncier: 1300EUR
Contactez Joyce SARABANDO de l'Agence Immobilière HAP IMMOBILIER 147 Rue HENRI Barbusse 80 330 Longueau.
Votre agence depuis 2006 sur le marché de l'immobilier, membre FNAIM, détenteur de la carte PRO, rédaction des compromis et adhérent AMANDA (partage des biens inter agences membres).
- Type de bien : Maison
- DPE : G -> 450 kWh/².an
- GES : C - 11 à 20 kg eq CO2/².an
- Surface : 95 m²
- Localisation : France - Hauts-de-France - Somme
- Ville : Amiens
- Code postal : 80000
- Annonce mise à jour le 17/12/2025



