Vente Maison 61000, Alençon france 105 000 €
Descriptif du bien
Magnifique maison T4 au calme, au sein d'une résidence entièrement clôturée datant de de 2004.
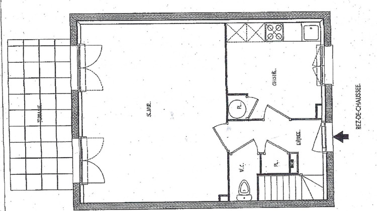
La maison est composée au RDC : une entrée avec placard, un salons - séjour avec accès direct sur le jardin, une cuisine séparée, et un WC.
Au 1er étage :
2 chambres donnant sur piscine et jardin et une chambre côté parking, une salle de bain, un wc séparé
2 places de parking viennent compléter ce bien.
Points forts :
Piscine dans la résidence
Proche commodités
A propos de la résidence :
Copropriété Nombre de lots 118
Pas de procédure en cours
Honoraires inclus de 5% TTC à la charge de l'acquéreur. Prix hors honoraires 100 000 . Dans une copropriété de 118 lots. Aucune procédure n'est en cours. DPE en cours. Les informations sur les risques auxquels ce bien est exposé sont disponibles sur le site Géorisques : georisques.gouv.fr.





