Vente Maison 50180, AGNEAUX france 42 500 €
Descriptif du bien
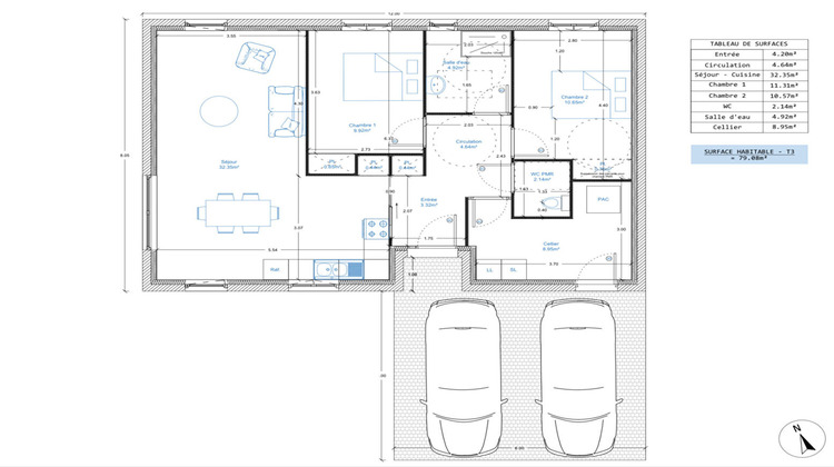
Le Cabinet Folliot vous propose ce terrain idéalement situé à Agneaux, au pied de l'Institut d'Agneaux et à proximité immédiate de la gare de Saint-Lô. Un permis de construire est déjà validé, offrant la possibilité de réaliser le projet de maison soit par l'intermédiaire d'un maître d'oeuvre, avec un chiffrage global déjà établi, soit en auto-construction, dans le respect du cahier des charges existant. Ce projet constitue une belle opportunité pour concrétiser rapidement une construction dans un secteur recherché. les informations sur les risques auxquels ce bien est exposé sont disponibles sur le site Géorisques : www.georisques.gouv.fr. Je reste à votre disposition pour tout renseignement complémentaire. ? 06 21 28 33 03 les informations sur les risques auquels ce bien est exposé sont disponibles sur le site Géorisques : www.georisques.gouv.fr. Pierre Emmanuel LEGOUPIL (EI) Agent Commercial - Numéro RSAC : 751 823 071 - COUTANCES.







