Vente Local commercial 07600, VALS LES BAINS france 70 000 €
Descriptif du bien
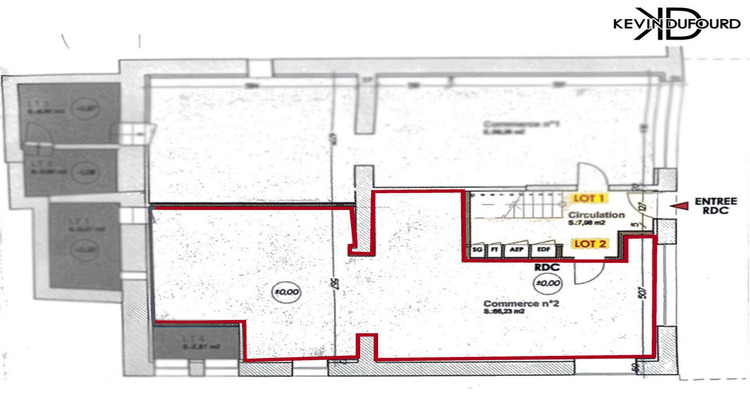
Kévin DUFOURD MarketPlaceImmobilier vous propose un Local commercial A RENOVER d'environ 66m² en plein coeur de VALS LES BAINS. Ce bien réunit tous les critères que vous pouvez attendre d'un local commercial avec grande vitrine, un parking à proximité, en face du parc de VALS LES BAINS Je reste à votre disposition pour visiter et découvrir ce bien. Le bien comprend 1 lot, et il est situé dans une copropriété de 19 lots (les charges courantes annuelles moyennes de copropriété sont de 500euros et le syndicat des copropriétaires ne fait pas l'objet d'une procédure citée à l'article L. 721-1 du code de la construction et de l'habitation).Pour plus d'informations ou pour organiser une visite, contactez Mr Dufourd au 06 12 29 16 50 - kevin.d@mpi-immo.com - RSAC Aubenas n° 791 454 366 Agent commercial indépendant du réseau national Marketplace Immobilier N° RSAC : 791454366
- Type de bien : Local commercial
- Surface : 66 m²
- Localisation : France - Auvergne-Rhône-Alpes - Ardèche
- Ville : VALS LES BAINS
- Code postal : 07600
- Annonce créée le 06/12/2025



