Vente Local commercial 33370, Tresses france 149 000 €
Descriptif du bien
Iad France - Thibaut Faure vous propose : Tresses - Zone d'activité proximité immédiate avenue de Branne
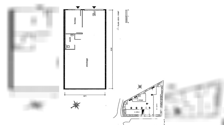
Local d'activité de 80 m² env composé d'un bureau avec climatisation réversible. Un espace de stockage avec 5m de HSP offrant la possibilité d'une mezzanine pour augmenter sensiblement l'espace utile. Un wc avec lavabo. 2 places de parking complètent le bien.
Valeur locative 1000 euros HT
Rapport possible : 8% brut.
La presente annonce immobiliere vise 3 lots situés dans une copropriété de 78 lots au total et ne faisant l'objet d'aucune procédure en cours citée à l'article L. 721-1 du code de la construction et de l'habitation. Montant moyen mensuel de charges déclaré par le vendeur : 81¤ par mois (soit 972 ¤ annuel). Honoraires d'agence à la charge du vendeur.
Bien non soumis au DPE. Les informations sur les risques auxquels ce bien est exposé, y compris l'obligation légale de débroussaillement, sont disponibles sur le site Géorisques : http://www.georisques.gouv.fr.
La présente annonce immobilière a été rédigée sous la responsabilité éditoriale de M Thibaut Faure mandataire indépendant en immobilier (sans détention de fonds), agent commercial de la SAS I@D France immatriculé au RSAC de bordeaux sous le numéro 804099117, titulaire de la carte de démarchage immobilier pour le compte de la société I@D France SAS.Informations LOI ALUR : Soumis au régime de copropriété. Nombre de lots : 78. Quote part annuelle(moyenne) : 972 euros. Honoraires charge vendeur. (gedeon_6727_33078238)
- Type de bien : Local commercial
- Surface : 80 m²
- Localisation : France - Nouvelle-Aquitaine - Gironde
- Ville : Tresses
- Code postal : 33370
- Annonce créée le 16/04/2026




