Vente Local commercial 34200, Sète france 270 000 €
Descriptif du bien
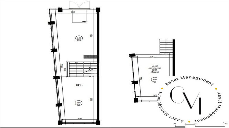
Murs libres d'un local commercial à vendre en VEFA à Sète dans un programme de qualité dont la livraison est prévue à partir du 4ème trimestre 2027 - Local de 66m² au RDC + 25m² en mezzanine soit 91m² au total - Local livré brut de béton - Situé à l'entrée Est de Sète, sur le secteur au Sud du canal de la Peyrade la résidence le programme se situe au coeur d'un futur environnement diversifié et favorisant mixité ainsi que développement économique. On retrouvera, à proximité immédiate des logements haut de gammes, des bureaux/coworking, une résidence services séniors et des commerces.
Sète est une commune attractive et innovante. Depuis 2017, la ville de Sète déploie une stratégie en matière de Smart City et améliore ainsi la qualité de vie et d'accueil de la presqu'île
Prix de vente : 270.000 TTC (225.000 HT), nous contacter pour plus d'informations
Dans une copropriété de 79 lots. Aucune procédure n'est en cours. Non soumis au DPE. Les informations sur les risques auxquels ce bien est exposé sont disponibles sur le site Géorisques : georisques.gouv.fr.
Votre conseiller CONSEIL ET VALORISATION IMMOBILIER ASSET MANAGEMENT : Conseiller Immobilier - Davy SERFATI

