Vente Local commercial 42100, Saint-Étienne france 462 000 €
Descriptif du bien
AVENDRE Locaux professionnels à Saint-Étienne Emplacement idéal : Situés à Saint-Étienne, dans un secteur dynamique et facilement accessible (proche axes routiers, tram/bus, centre-ville ou zone industrielle selon le cas), ces locaux offrent une belle visibilité et un environnement propice à l'activité professionnelle.
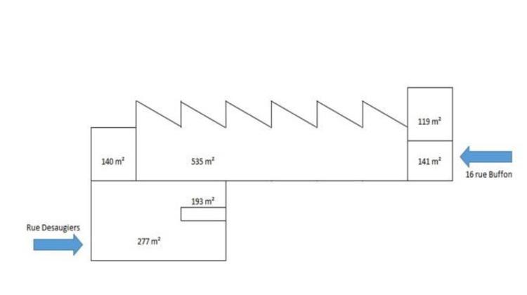
Surface : 824 m² traversants, grand espace de 535 m2, bureau sur 2 niveau (119m2 +141m) sous sol pour 17 places de parking 277m2+réserve 193m2. Monte charge reliant les niveaux.
Description :
Plusieurs bureaux cloisonnés / open-space
Espace accueil / salle de réunion
Coin cuisine / sanitaires
Connexion internet haut débit
Accès PMR (si applicable) [ex : Parking privé / places disponibles à proximité]
? Convient parfaitement pour : professions libérales, start-ups, PME, cabinet médical, showroom, atelier propre...
Locaux sécurisés prêts à l'emploi / à aménager selon votre activité.
Prix de vente : 462000 euro
Contactez-nous dès maintenant pour plus d'informations ou pour organiser une visite :
Au O625395092.
Honoraires inclus de 5% à la charge de l'acquéreur. Prix hors honoraires 440 000 . DPE en cours. Les informations sur les risques auxquels ce bien est exposé sont disponibles sur le site Géorisques : georisques.gouv.fr.
- Type de bien : Local commercial
- Surface : 824 m²
- Localisation : France - Auvergne-Rhône-Alpes - Loire
- Ville : Saint-Étienne
- Code postal : 42100
- Annonce créée le 01/08/2025



