Vente Local commercial 42000, Saint-Étienne france 370 000 €
Descriptif du bien
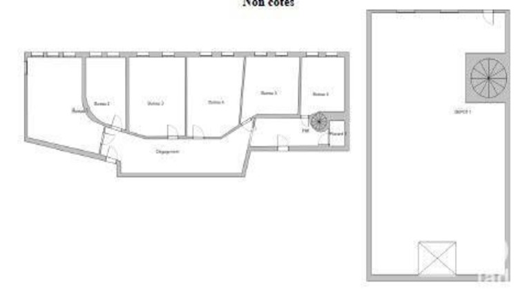
Iad France - Laurent Fresnel (06 62 81 36 75) vous propose : Local mixte bureau / dépôt - 257 m² environ - Saint-Étienne (Montreynaud)
136 m² environ de dépôt en rez-de-chaussée (accès direct)
6 bureaux rénovés à l'étage (clé en main)
Copropriété d'activité sécurisée
Chauffage pompe à chaleur réversible
Zone Franche Urbaine (ZFU) jusqu'au 31 / 12 / 2025 (avantages fiscaux)
? Idéal pour : Entreprises, artisans, startups recherchant un espace opérationnel avec stockage.
? Disponible immédiatement - Visites sur RDV.
Information d'affichage énergétique sur le bien associé à cette annonce : classe ENERGIE C indice 131 et classe CLIMAT B indice 4. La présente annonce immobilière a été rédigée sous la responsabilité éditoriale de M. Laurent Fresnel (ID 22837), Agent Commercial mandataire en immobilier immatriculé au Registre Spécial des Agents Commerciaux (RSAC) du Tribunal de Commerce de SAINT-ETIENNE sous le numéro 421628413
Retrouvez tous nos biens sur notre site internet. www.iadfrance.fr.
Informations LOI ALUR :
Honoraires charge vendeur. (gedeon_6727_31897859)
- Type de bien : Local commercial
- Surface : 257 m²
- Localisation : France - Auvergne-Rhône-Alpes - Loire
- Ville : Saint-Étienne
- Code postal : 42000
- Annonce mise à jour le 26/02/2026





