Vente Local commercial 59890, Quesnoy-sur-Deûle france 510 000 €
Descriptif du bien
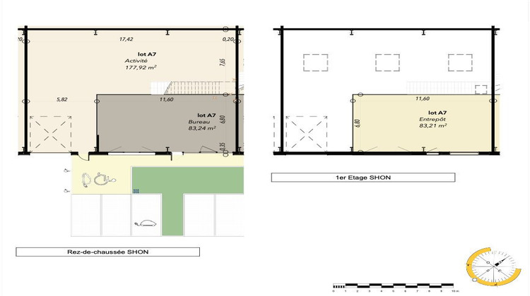
Quesnoy-sur-Deûle Entrepôt / Local d'activité neuf | Cellule A7 | À vendre
Dernière cellule disponible au sein d'un programme de 5 800 m² livré en totalité les autres unités ont toutes trouvé preneur.
Idéalement positionnée à proximité de la rocade nord-ouest, cette cellule bénéficie d'une excellente accessibilité aux grands axes de la métropole lilloise.
La cellule A7 développe 341 m² répartis en 177 m² d'activité, 82 m² de bureaux et 82 m² de mezzanine. Elle est livrée brute de béton, fluides en attente, avec porte sectionnelle 3,5 x 4,3 m, hauteur sous fers de 7,5 m et places de parking privatives. Un aménagement clé en main reste possible via le promoteur.
Prix de vente : 510 000 HT net vendeur. Charges de copropriété : 5 HT/m²/an taxe foncière : 8 /m²/an. TVA au taux de 20 %, frais de notaire réduits à 3 %. Honoraires acquéreur : 5 % HT non inclus.
Disponibilité immédiate.
Renseignements et visites : Immo Pour Pro
DPE en cours. Les informations sur les risques auxquels ce bien est exposé sont disponibles sur le site Géorisques : georisques.gouv.fr.
Votre conseiller Immo Pour Pro : Président - Thibault DELECROIX
Carte T CPI59062022000000073
RCP MRCSIMO202205FR00000000042709A00
- Type de bien : Local commercial
- Surface : 341 m²
- Localisation : France - Hauts-de-France - Nord
- Ville : Quesnoy-sur-Deûle
- Code postal : 59890
- Annonce créée le 17/04/2026





