Vente Local commercial 75019, PARIS 19EME ARRONDISSEMENT france 470 000 €
Descriptif du bien
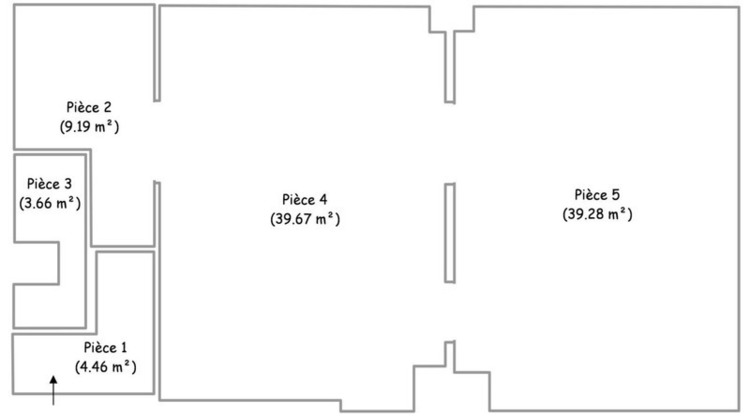
Découvrez ce local d’activité en souplex de 96,26 m², idéalement conçu pour accueillir vos projets créatifs et artistiques. Que vous soyez photographe, vidéaste, musicien ou que vous ayez besoin d'un espace dédié à la post-production ou aux répétitions, ce lieu saura répondre à vos attentes. Le local se compose de deux grandes pièces de 38 m² chacune, vous y trouverez également une cuisine et une salle de bain entièrement équipées, pour plus de confort et de praticité. L’accès au local se fait par un sas blindé, avec des possibilités d’entrée via un ascenseur ou un escalier, et un stationnement en option avec place de parking à louer. Surveillé par vidéosurveillance, avec la présence d’un gardien et d’un maître-chien, assurant une sécurité 24h/24, 7j/7. Situé à seulement 100 mètres de la station de métro Crimée (ligne 7) et à proximité du RER E (Rosa Parks), ce local bénéficie d’une excellente accessibilité, tout en étant proche des commodités et services du quartier. Vous profiterez de la tranquillité d’une résidence arborée et sécurisée, inspirante et parfaitement adaptée aux besoins des artistes et créateurs. N’hésitez pas à nous contacter pour plus de renseignements et pour planifier une visite. Nombre de lots de la copropriété : 989, Montant moyen annuel de la quote-part de charges (budget prévisionnel)(Provisions) : 2480€ soit 206€ par mois. Les honoraires sont à la charge du vendeur. Les informations sur les risques auxquels ce bien est exposé sont disponibles sur le site Géorisques : www. georisques. gouv. fr. Réseau Immobilier CAPIFRANCE - Votre agent commercial (RSAC N°531 686 111 - Greffe de CRETEIL) Francis MARGNOUX Entrepreneur Individuel 06 08 77 25 26 - Plus d’informations sur le site de CAPIFRANCE (réf.879527)
- Type de bien : Local commercial
- Surface : 96 m²
- Localisation : France - ile-de-france - Paris
- Ville : PARIS 19EME ARRONDISSEMENT
- Code postal : 75019
- Annonce créée le 02/11/2024





