Vente Local commercial 75116, PARIS 16 france 798 000 €
Descriptif du bien
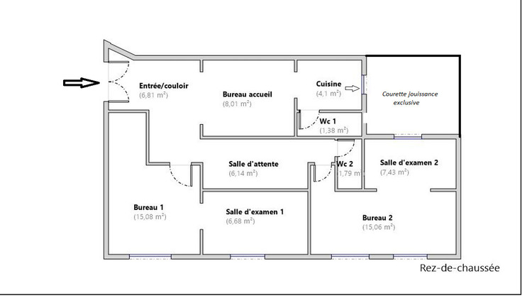
EXCLUSIVITE. AVENUE VICTOR HUGO. Dans un immeuble en pierres de taille construit en 1860, un Local Professionnel (POUR PROFESSIONS LIBERALES UNIQUEMENT) en rez-de-chaussée sur cour d'une surface de 72,48 m2 carrez offrant un accueil/espace secrétariat, une salle d'attente, 2 grands bureaux. Possibilité de créer un 3ème bureau, une kitchenette avec accès direct à une courette à jouissance exclusive, 2 cabinets d'aisance. Accès PMR. Hauteur sous plafond 3 m. Charges annuelles de copropriété 2.400 euros. Copropriété de 20 lots principaux. Métro Victor Hugo. Contact direct 0652740518 Muriel Garnreiter (E.I) muriel@rez-de-chaussee.com RSAC 2018AC00169. (3.91 % honoraires TTC à la charge de l'acquéreur.) Copropriété de 49 lots - dont 20 lots habitation.(). (RDC) Muriel GARNREITER (EI) Agent Commercial - Numéro RSAC : - .
- Type de bien : Local commercial
- DPE : D - 151 à 230 kWh/².an
- GES : B - 6 à 10 kg eq CO2/².an
- Surface : 72 m²
- Localisation : France - ile-de-france - Paris
- Ville : PARIS 16
- Code postal : 75116
- Annonce mise à jour le 25/11/2025









