Vente Local commercial 91120, PALAISEAU france 129 000 €
1 / 7
Descriptif du bien
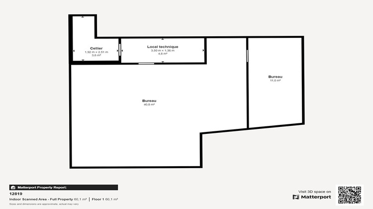
Votre agence L'Adresse de PALAISEAU vous propose un local commercial à usage de bureaux de 57m² situé entre les gares de Palaiseau-Villebon et Lozère composé d'une grande pièce principale d'environ 31.57m² desservant sur une salle d'attente de 11.06m², une kitchenette donnant accès au WC séparé.
- Type de bien : Local commercial
- DPE : A -< 51 kWh/².an
- GES : A -< 6 kg eq CO2/².an
- Surface : 57 m²
- Localisation : France - ile-de-france - Essonne
- Ville : PALAISEAU
- Code postal : 91120
- Annonce créée le 21/04/2026






