Vente Local commercial 68100, Mulhouse france 800 000 €
Descriptif du bien
Exclusivité !
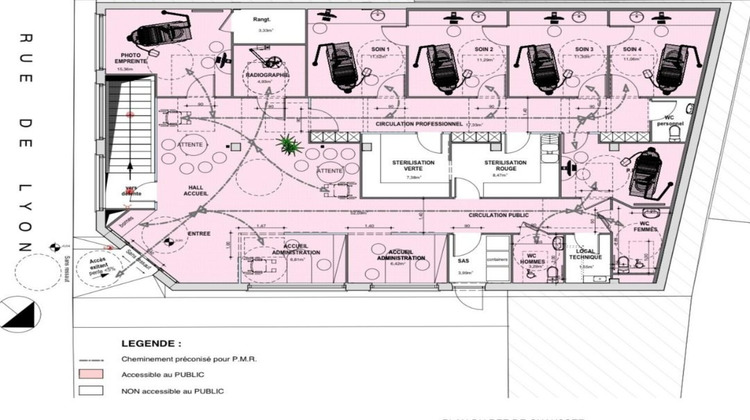
À Vendre : Local commercial de 400m² au 13 rue de Lyon, Mulhouse. Lumineux et bien aéré, idéal pour professions libérales, centres vétérinaires, ateliers d'artistes, cabinets médicaux, juridiques, comptables ou restauration et bien plus. Grande flexibilité d'aménagement. Situé dans un quartier dynamique, proche des commodités et des transports.
Prix de vente : 800 000 HT
Prix net vendeur : 800 000 HT
Loyer annuel : 54 000 HT
Honoraires commerciales : 50 000 HT
(à la charge de l'acquéreur)
Ne manquez pas cette opportunité rare! Contacter pour plus d'informations ou une visite au +33(0)751030819 , par mail: n.priso@avinim-transaction.fr
DPE en cours. Les informations sur les risques auxquels ce bien est exposé sont disponibles sur le site Géorisques : georisques.gouv.fr.
Votre conseiller Avinim transaction : Narcisse PRISO
Agent commercial (Entreprise individuelle)
RSAC 893 885 723 Sarreguemines
RCP RD01894701W
- Type de bien : Local commercial
- Surface : 400 m²
- Localisation : France - Grand Est - Rhin (Haut)
- Ville : Mulhouse
- Code postal : 68100
- Annonce mise à jour le 13/03/2026


