Vente Local commercial 93100, MONTREUIL france 452 000 €
Descriptif du bien
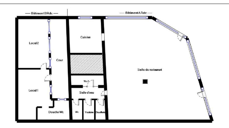
Découvrez ce local commercial, situé dans un cadre attractif. Ce bien a été rénové en 2021 environ, Loyer : 32 532 euros annuel non soumis à la TVA. Bail commercial 3/6/9 Le rez-de-chaussée, d'une superficie de 101,50 m², comprend une surface commerciale, des sanitaires, une cuisine et une chaufferie. La hauteur sous plafond de 2,65 m ajoute une touche d'élégance et de grandeur à l'espace. Ce local est actuellement loué, ce qui témoigne de sa qualité et de son attractivité. Il est conforme aux normes ERP et dispose de tous les équipements nécessaires pour une activité commerciale prospère, y compris des sanitaires et une extraction. A proximité, vous trouverez plusieurs commodités essentielles pour faciliter votre quotidien, telles que des transports en commun, Entreprises, bureaux et des commerces de proximité. (2.73 % honoraires TTC à la charge de l'acquéreur.) Copropriété de 9 lots - dont 6 lots habitation. (). Charges annuelles : 4440 euros.
- Type de bien : Local commercial
- DPE : D - 151 à 230 kWh/².an
- GES : D - 21 à 35 kg eq CO2/².an
- Surface : 126 m²
- Localisation : France - ile-de-france - Seine Saint Denis
- Ville : MONTREUIL
- Code postal : 93100
- Disponible le 09/03/2026
- Annonce mise à jour le 07/04/2026

