Vente Local commercial 34000, Montpellier france 210 000 €
Descriptif du bien
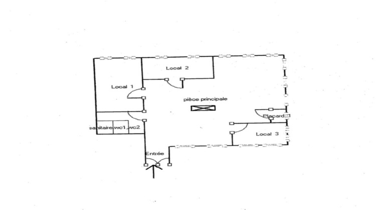
MONTPELLIER - POLYGONE - idéalement situé à deux pas de la place de la comédie, Bureau de 128m2 très lumineux nombreuses possibilités d'aménagement, avec wc et point d'eau situé en étage élevé avec ascenseur, accessible aux personnes à mobilites réduites . À visiter sans plus tarder!
Bien soumis au statut juridique de la copropriété.lot 31 Charges annuelles de copropriété (Montant moyen annuel quote-part du budget prévisionnel vendeur) : 10 000EUR.
Les informations sur les risques auxquels ce bien est exposé sont disponibles sur le site Géorisques : www. georisques. gouv. fr
Pour tous renseignements complementaires ou visite veuillez contacter : martine ABAD 0623148449- Agence AMJ IMMO



