Vente Local commercial 82700, Montech france 425 000 €
Descriptif du bien
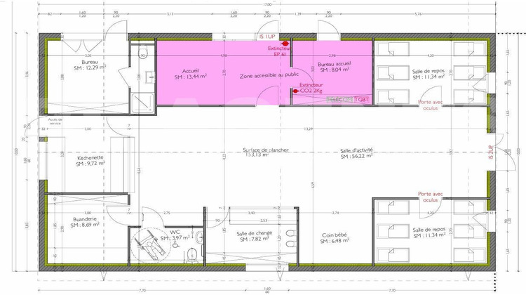
Dans un village en plein essor, découvrez ce local professionnel de plain pied de plus de 150 m², idéal pour développer votre activité dans les meilleures conditions.
Il vous offrira un espace vaste et fonctionnel, parfaitement adapté pour bureaux, cabinet, atelier ou activité libérale.
Il bénéficie d'une excellente luminosité naturelle, d'une façade moderne, d'un environnement calme et agréable.
À l'extérieur, vous profitez d'un grand parking pratique et idéal pour accueillir vos clients en toute sécurité.
Ce local est en parfait état ? avec un emplacement stratégique ?, dans la nouvelle zone industriel de la Mouscane, afin de démarrer ou d'accroître votre activité ?.
Possibilité de construction de bâtiments professionnels supplémentaire sur le terrain qui est de 1 500 m².
Honoraires à la charge du vendeur. DPE en cours. Les informations sur les risques auxquels ce bien est exposé sont disponibles sur le site Géorisques : georisques.gouv.fr.
Votre conseiller We Invest France : Christopher Chevais
Agent commercial (Entreprise individuelle)
RSAC 809 090 590 MONTAUBAN.
Les informations sur les risques auxquels ce bien est exposé sont disponibles sur le site Géorisques : www.georisques.gouv.fr
- Type de bien : Local commercial
- Surface : 153 m²
- Localisation : France - Occitanie - Tarn et Garonne
- Ville : Montech
- Code postal : 82700
- Annonce créée le 13/03/2026




