Vente Local commercial 43120, Monistrol-sur-Loire france 290 000 €
Descriptif du bien
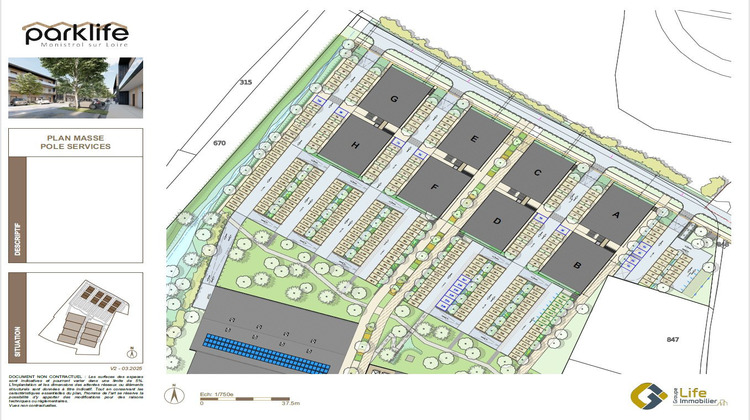
Pôle multisectoriel inscrit dans une dynamique d'avenir, PARK LIFE a été
pensé comme un parc d'activité mêlant, sports, loisirs, services, activités
tertiaires et de santé.
Partenaire des collectivités, le groupe LIFE IMMOBILIER ambitionne
avec ce projet d'oeuvrer auprès du département de la Haute-Loire pour
accompagner le développement territorial de Monistrol-sur-Loire et des
communes environnantes. Cette polarité viendra étendre le rayonnement
et l'attractivité d'une commune résolument tournée vers l'avenir.
Grâce à son architecture contemporaine parfaitement inscrite dans
le paysage, remarquable par le mariage de l'acier et du bois, et ses
performances environnementales exemplaires PARK LIFE concilie avec brio
usages et enjeux bioclimatiques.
Le dessein architectural raisonne côté extérieur sur la conception d'un
volet paysager soigné qui dialogue avec son environnement. Corridors
végétaux et valorisation du grand paysage, tout concourt à préserver
l'harmonie des lieux.
Son parc paysager composé d'essences locales, ses bancs où il fait bon
se prélasser à la pause de midi ou entre 2 séances de sport, avec une
vue imprenable sur les grandes prairies et les vestiges du Château de
Rochebaron, le tout traversé du Nord au Sud par un mail dédié aux modes
de déplacements doux, PARK LIFE célèbre la vie au grand air.
Honoraires à la charge du vendeur. Dans une copropriété de 51 lots. Aucune procédure n'est en cours. Non soumis au DPE. Les informations sur les risques auxquels ce bien est exposé sont disponibles sur le site Géorisques : georisques.gouv.fr.
.
Documents et photos non contractuels susceptibles d'évolutions au fil de la commercialisation.
- Type de bien : Local commercial
- Surface : 187 m²
- Localisation : France - Auvergne-Rhône-Alpes - Loire (Haute)
- Ville : Monistrol-sur-Loire
- Code postal : 43120
- Disponible le 01/10/2026
- Annonce créée le 09/05/2025





