Vente Local commercial 78160, MARLY-LE-ROI france 680 000 €
1 / 9
Descriptif du bien
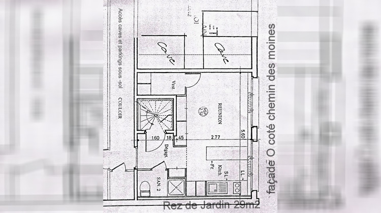
DANS UNE RESIDENCE DE STANDING AU COEUR DE LA VILLE DE MARLY LE ROI EN REZ DE CHAUSSEE UN PLATEAU DE 166 M2 POUR ACCTIVITE PROFESSIONNELLE ACTUELLEMENT DIVISE EN ACCUEIL SALLE D'ATTENTE 4 / 5 BUREAUX RANGEMENT ARCHIVE EN DESSOUS VESTIAIRE REUNION WC COIN CUISINE 2 CAVES 5 PLACES DE PARKING DOCUMENTATION SUR DEMANDE (4.62 % honoraires TTC à la charge de l'acquéreur.) Copropriété de 295 lots - dont 105 lots habitation. (Pas de procédure en cours). Charges annuelles : 9000 euros.
- Type de bien : Local commercial
- DPE : E - 231 à 330 kWh/².an
- GES : E - 36 à 55 kg eq CO2/².an
- Surface : 166 m²
- Localisation : France - ile-de-france - Yvelines
- Ville : MARLY-LE-ROI
- Code postal : 78160
- Annonce créée le 18/11/2025








