Vente Local commercial 69008, LYON 8 france 460 000 €
Descriptif du bien
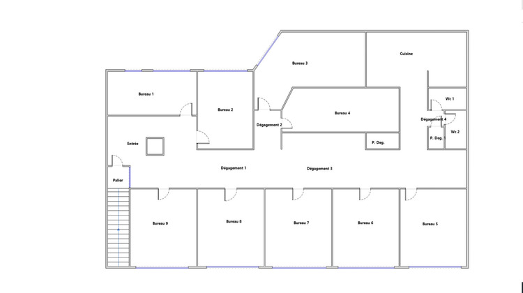
BUREAUX RENOVÉS - EXCELLENT ÉTAT - Découvrez ces bureaux modernes situés au 310, avenue Berthelot, à proximité des tramways et des commerces. Installés en entresol dans un immeuble de 1990, ces bureaux de 230 m² offrent un espace de travail de qualité supérieure. Les locaux, récemment rénovés, se composent de 7 bureaux cloisonnés allant de 14 m² à 21 m², d'une salle de réunion spacieuse, d'une salle de pause confortable, d'une cuisine entièrement équipée, de WC séparés et d'un local technique. Les bureaux bénéficient d'une isolation intérieure de premier ordre, avec triple vitrage et une installation électrique en parfait état. Ils offrent une excellente isolation phonique et thermique ainsi qu'une baie de brassage pour une connectivité optimale. Ce bien traversant assure une luminosité agréable tout au long de la journée. Possibilité d'acquérir 9 places de stationnement nominatives sont permettant d'offrir un confort supplémentaire pour vos collaborateurs et visiteurs. Copropriété de 30 lots (Pas de procédure en cours). Charges annuelles : 4765.77 euros.
- Type de bien : Local commercial
- DPE : C - 91 à 150 kWh/².an
- GES : A -< 6 kg eq CO2/².an
- Surface : 225 m²
- Localisation : France - Auvergne-Rhône-Alpes - Rhône
- Ville : LYON 8
- Code postal : 69008
- Annonce mise à jour le 07/10/2025







