Vente Local commercial 31490, Léguevin france 479 000 €
Descriptif du bien
Iad France - Yann Thomas (06 62 63 09 98) vous propose : Locaux professionnels ou commerciaux de 261 m² environ à LEGUEVIN proche de l'OUEST de Toulouse (Colomiers). Changement de destination pour habitation possible / division de lots.
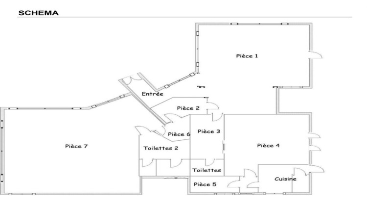
Cf PLAN, il est réparti en 2 surfaces principales pouvant être séparées. En très bon état, il est équipé de doubles vitrages, de volets électrique et de climatisations.
Il bénéficie d'une dizaine de place de parking.
Nombreuses activités possibles hors restauration.
(médical, paramédical, bureaux, crèche, etc. )
Prix de vente 460000 euros + honoraires de 19000 euros ttc (soit 15833 e HT)
Information d'affichage énergétique sur le bien associé à cette annonce : DPE NS indice 0 et GES NS indice 0. La présente annonce immobilière a été rédigée sous la responsabilité éditoriale de M. Yann Thomas (ID 50840), Agent Commercial mandataire en immobilier immatriculé au Registre Spécial des Agents Commerciaux (RSAC) du Tribunal de Commerce de TOULOUSE sous le numéro 808762553
Retrouvez tous nos biens sur notre site internet. www.iadfrance.fr.
Informations LOI ALUR :
Honoraires charge vendeur. (gedeon_6727_32717657)
- Type de bien : Local commercial
- Surface : 261 m²
- Localisation : France - Occitanie - Garonne (Haute)
- Ville : Léguevin
- Code postal : 31490
- Annonce créée le 19/02/2026





