Vente Local commercial 06110, Le Cannet france 2 700 000 €
Descriptif du bien
Le Cannet Actif commercial 1 117 m² Axe stratégique Cannes
À vendre, murs libres d'un local commercial indépendant situé sur un axe pénétrant majeur entre Cannes et Le Cannet, bénéficiant d'une excellente visibilité et d'un flux automobile soutenu.
Cet actif précédemment exploité par une concession automobile haut de gamme développe une surface totale de 1 117 m² et offre une configuration technique rare sur le secteur.
SURFACES
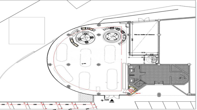
Surface totale (loi Carrez) : 1 033 m² (+ 84 m² hors loi Carrez)
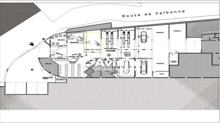
RDC 244 m² : showroom vitré Mezzanine 52 m² : bureaux Sous-sol 737 m² : atelier et stationnement 2 accès véhicules
CARACTÉRISTIQUES
Façade d'angle 20 m de linéaire vitrine Hauteur sous plafond 5,30 m Sous-sol traversant accessible véhicules 6 places de stationnement privatives en façade Conforme ERP
Actif adapté à une exploitation automobile, technique ou commerciale à forte visibilité, ou à une stratégie d'investissement avec mise en place d'un locataire structuré.
CONDITIONS FINANCIÈRES
Prix de vente : 2 700 000 FAICharges de copropriété : 23 000 / anTaxe foncière 2024 : 20 000
Dans une copropriété de 15 lots aucune procédure en cours.
Veuillez me contacter pour toute précision et prévoir une visite des lieux selon vos disponibilités.
Cordialement,
Emmanuel LAURENT
AVINIM RESEAU BROKERS® - Région PACA
Tél. : 06 34 07 18 10
Mail : emmanuel.laurent@avinim-brokers.fr
Dans une copropriété de 15 lots. Quote-part moyenne du budget prévisionnel 23 000 /an. Aucune procédure n'est en cours. DPE en cours. Les informations sur les risques auxquels ce bien est exposé sont disponibles sur le site Géorisques : georisques.gouv.fr.
Votre conseiller AVINIM RESEAU BROKERS : Emmanuel LAURENT
Agent commercial (Entreprise individuelle)
RSAC 510.896.475
- Type de bien : Local commercial
- Surface : 1117 m²
- Localisation : France - provence-alpes-cote-d-azur - Alpes Maritimes
- Ville : Le Cannet
- Code postal : 06110
- Annonce créée le 27/02/2026



