Vente Local commercial 44140, Le Bignon france 333 250 €
Descriptif du bien
Village d'entreprises LE BIGNON, au Sud de Nantes :
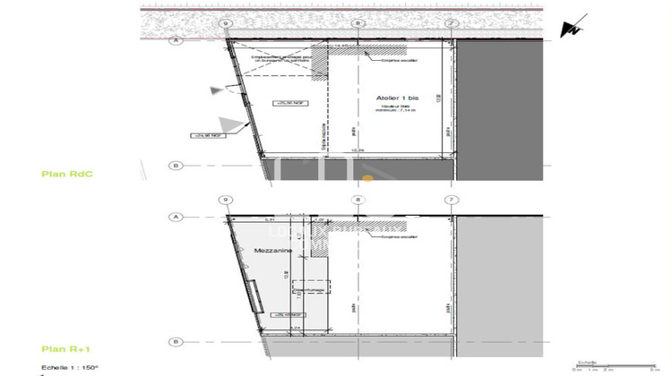
Local d'activité neuf d'environ 217,90 m2 comprenant une surface de stockage de 160,20 m2 et une mezzanine de 57,70 m2 en plancher collaborant, pouvant supporter une charge de 250kg/m2 (escalier et garde-corps non compris) et disposant de 3 stationnements privatifs.
Livré brut de béton, le local est équipé d'huisseries et d'une porte sectionnelle de 3,43 X 3 mètres. Le raccordement électrique, incluant un compteur, des prises électriques, et un éclairage LED, est en place. Les fluides en attente sont prêts à être connectés.
La hauteur libre sous charpente est de 7,11 m en bas de pente et de 7,54 m au point haut, offrant ainsi un environnement spacieux et modulables selon vos besoins.
Le site sera équipé de clôtures rigides et d'un portail coulissant motorisé. Les parkings seront précâblés pour l'installation de bornes électriques.
Conforme aux normes RT2020, garantissant une performance énergétique optimale, cet espace est idéal pour les entreprises qui recherchent un environnement spacieux, modulable et performant. Il est situé dans un environnement dynamique et accessible, à proximité de Nantes et des grands axes routiers.
Prix de vente HT : 333 250 EUR + Honoraires charge acquéreur 5 % HT du prix de vente + TVA 20%.
Pour plus d'informations contactez-nous au 02 55 07 86 35
LOCAUX-BUREAUX-COMMERCES 02 55 07 86 35
- Type de bien : Local commercial
- Surface : 217 m²
- Localisation : France - pays-de-la-loire - Loire Atlantique
- Ville : Le Bignon
- Code postal : 44140
- Annonce mise à jour le 29/01/2025





