Vente Local commercial 34970, Lattes france 1 200 000 €
Descriptif du bien
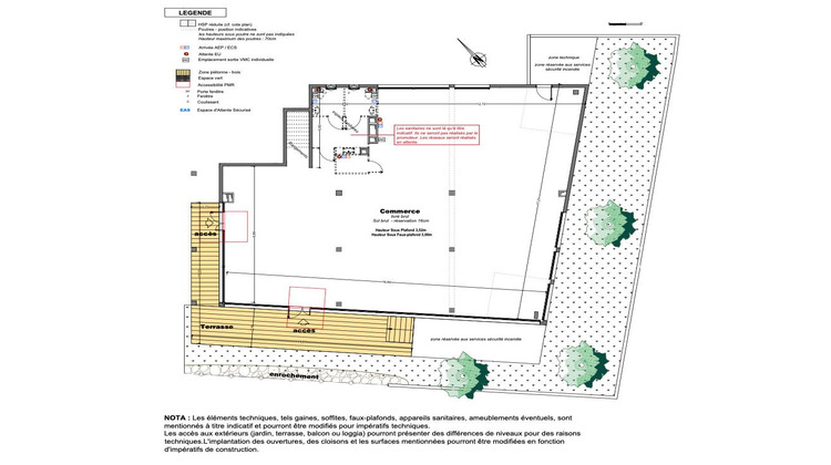
Local commercial neuf 306 m² Emplacement d'exception à Montpellier/Lattes
À vendre : un grand local commercial neuf de 306 m², idéalement situé sur l'axe principal de la ZAC Puech Radier à Montpellier/Lattes, un quartier en plein essor et très dynamique.
Grand local de 306m2 brut, terrasse bois privative 50m2 avec acces au local, 171m2 d'espace de stationnement.
Bénéficiez d'une visibilité maximale grâce à des vitrines sur 3 côtés, offrant un linéaire de plus de 22 mètres. Le local, en rez-de-chaussée d'un immeuble R+2 (bureaux), dispose d'une hauteur sous plafond brut de 3,5 m.
Parfait pour un commerce, une boulangerie, un laboratoire d'analyses médicales, un cabinet de kinésithérapie, une salle de sport ou tout autre projet professionnel. Tout y est possible !
Un emplacement stratégique, des prestations haut de gamme et un potentiel commercial exceptionnel. À saisir sans tarder !
Prix honoraire agence inclus 1.200.000 HT.
Honoraires à la charge du vendeur. Non soumis au DPE. Les informations sur les risques auxquels ce bien est exposé sont disponibles sur le site Géorisques : georisques.gouv.fr.
Votre conseiller Qoridor : Christina Heintz
Agent commercial (Entreprise individuelle)
RSAC 508 669 579
RCP AXA



